
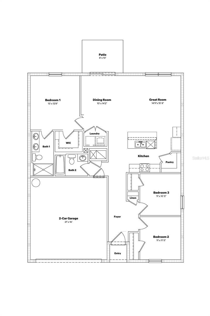
Under Construction. This single-story, all concrete block constructed 3 bedroom, 2 bathroom home features an open concept floorplan that optimizes living space. The spacious kitchen overlooks the great room, dining area, and outdoor patio. The kitchen comes full equipped with stainless-steel appliances including a built-in dishwasher, range, and microwave. The primary suite is located towards the back of the home, featuring a spacious walk-in closet and ensuite bathroom with double vanity sinks....Under Construction. This single-story, all concrete block constructed 3 bedroom, 2 bathroom home features an open concept floorplan that optimizes living space. The spacious kitchen overlooks the great room, dining area, and outdoor patio. The kitchen comes full equipped with stainless-steel appliances including a built-in dishwasher, range, and microwave. The primary suite is located towards the back of the home, featuring a spacious walk-in closet and ensuite bathroom with double vanity sinks. Two additional bedrooms are located towards the front of the home and share a bathroom across the hall. Pictures, photographs, colors, features, and sizes are for illustration purposes only and will vary from the homes as built. Home and community information including pricing, included features, terms, availability and amenities are subject to change and prior sale at any time without notice or obligation. CRC057592.
View MoreCourtesy of
Agency Name: DR HORTON REALTY OF WEST CENTRAL FLORIDA
Agency Contact: 352-558-6840
Agent Name: Anne Peterson Eger
Presented by
Agency Title: The Keyes Company
Agency Phone:
Request Info
Send an email with a link to
10101 SE 158th Lane , Summerfield, FL 34491.
Email 10101 SE 158th Lane , Summerfield, FL 34491
Thank you for your inquiry! As a thank you, we have a Special Mortgage Offer for You.
We would like to provide you a free, no-obligation, home loan pre-approval review.