
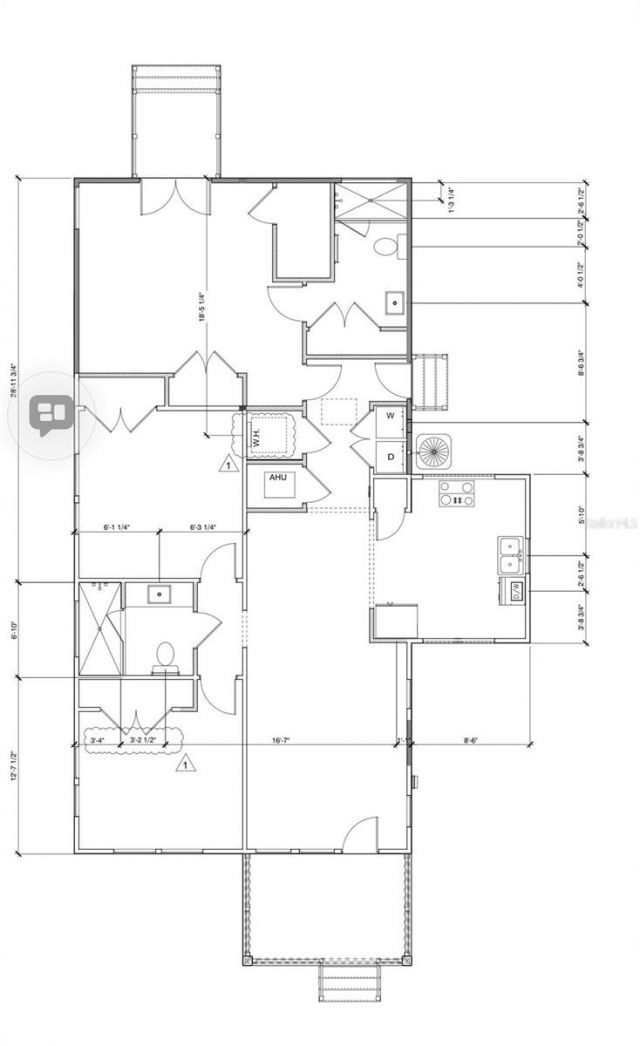
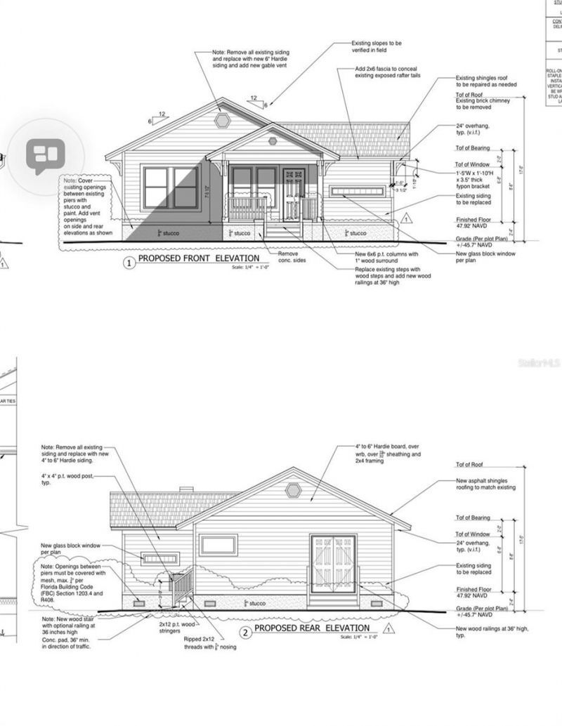
INVESTORA SPECIAL - investment property located at 15 Block South of Downtown St. Petersburg has been designated for a rehabilitation project.The roof is 3 years old . Zoned NT-2, the lot provides flexibility, including the potential for an accessory dwelling unit (ADU) city guide lines Currently, there is an approved floor plan for the main structure, which comprises a 1,200-square-foot residence with a three-bedroom, two-bathroom layout. The targeted market rent for this unit is $2,500 a month...INVESTORA SPECIAL - investment property located at 15 Block South of Downtown St. Petersburg has been designated for a rehabilitation project.The roof is 3 years old . Zoned NT-2, the lot provides flexibility, including the potential for an accessory dwelling unit (ADU) city guide lines Currently, there is an approved floor plan for the main structure, which comprises a 1,200-square-foot residence with a three-bedroom, two-bathroom layout. The targeted market rent for this unit is $2,500 a month.Also approved is an option to add a separate second Dwelling Unit (ADU) with its own water and electric connections in the backyard. This ADU is planned to be up to 800 square feet and will feature a two-bedroom, two-bathroom configuration, with an expected monthly rent of $1,800.Situated just minutes from the vibrant core of Downtown St. Petersburg and with convenient access to Interstate 275, this property offers a desirable combination of urban convenience and residential tranquility. It also option for a substantial three-car garage accessible via the alley.With close proximity to major transportation routes and airports, this bungalow provides not only a residence but also a lifestyle-delivering the best of St. Petersburg living at exceptional value.
View MoreCourtesy of
Agency Name: R & R UGOL
Agency Contact: 813-8923774
Agent Name: Ruth Ugol
Presented by
Agency Title: The Keyes Company
Agency Phone:
Request Info
Send an email with a link to
1059 15th Avenue S, Saint Petersburg, FL 33705.
Email 1059 15th Avenue S, Saint Petersburg, FL 33705
Thank you for your inquiry! As a thank you, we have a Special Mortgage Offer for You.
We would like to provide you a free, no-obligation, home loan pre-approval review.