
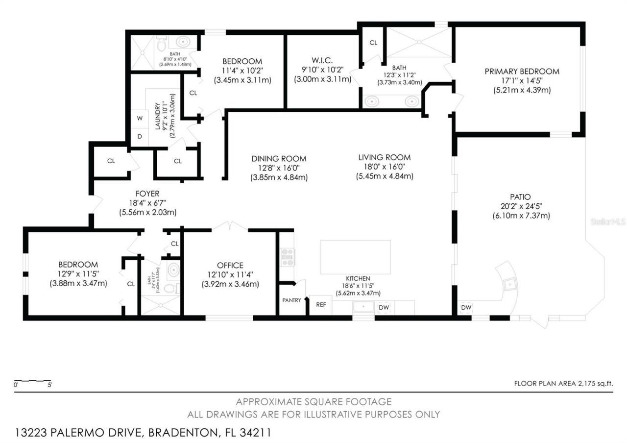
Welcome to 13223 Palermo Dr, located in the highly sought-after Esplanade Golf and Country Club in Bradenton, Florida, where resort-style living meets everyday comfort. Although this home is non golf deeded, you can still enjoy the pay to pay system and enjoy golf at your preference, and still enjoy all the amazing amenities at Esplanade!This beautifully maintained home offers a perfect blend of elegance and functionality, featuring an open-concept layout, spacious living areas, and thoughtfully...Welcome to 13223 Palermo Dr, located in the highly sought-after Esplanade Golf and Country Club in Bradenton, Florida, where resort-style living meets everyday comfort. Although this home is non golf deeded, you can still enjoy the pay to pay system and enjoy golf at your preference, and still enjoy all the amazing amenities at Esplanade!This beautifully maintained home offers a perfect blend of elegance and functionality, featuring an open-concept layout, spacious living areas, and thoughtfully designed finishes throughout. The kitchen is the heart of the home, complete with modern cabinetry, quality appliances, and a layout ideal for both entertaining and everyday living.Step outside to your private lanai and enjoy the peaceful Florida lifestyle, whether you are having your morning coffee or unwinding in the evening. The home is designed to maximize indoor-outdoor living, making it perfect for enjoying the year-round sunshine.Living in Esplanade means access to an incredible lineup of amenities, including a championship golf course, resort-style pool, fitness center, tennis and pickleball courts, dining options, and a full calendar of social activities. It is truly a lifestyle, not just a home.Conveniently located in Bradenton, you are just a short drive from world-class beaches, shopping, dining, and everything the Lakewood Ranch area has and more.If you are looking for luxury, lifestyle, and location, this home checks all the boxes.
View MoreCourtesy of
Agency Name: COLDWELL BANKER REALTY
Agency Contact: 941-907-1033
Agent Name: Justin Tarica
Presented by
Agency Title: The Keyes Company
Agency Phone:
Request Info
Send an email with a link to
13223 Palermo Drive, Bradenton, FL 34211.
Email 13223 Palermo Drive, Bradenton, FL 34211
Thank you for your inquiry! As a thank you, we have a Special Mortgage Offer for You.
We would like to provide you a free, no-obligation, home loan pre-approval review.