
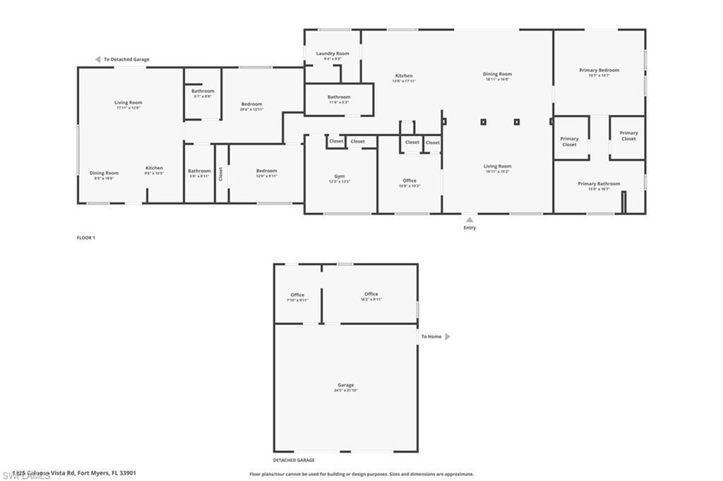
Welcome to your private oasis on a fully fenced .53 acre lot in one of McGregor's most sought after neighborhoods. The main home offers three bedrooms, a den/office and two bathrooms, with an open floor plan and a bright, spacious kitchen that flows seamlessly into the living and dining areas - perfect for entertaining or everyday living. The kitchen is equipped with high end Samsung Bespoke appliances and quartz countertops. The master primary suite is a true retreat, featuring dual walk-in 'Ja...Welcome to your private oasis on a fully fenced .53 acre lot in one of McGregor's most sought after neighborhoods. The main home offers three bedrooms, a den/office and two bathrooms, with an open floor plan and a bright, spacious kitchen that flows seamlessly into the living and dining areas - perfect for entertaining or everyday living. The kitchen is equipped with high end Samsung Bespoke appliances and quartz countertops. The master primary suite is a true retreat, featuring dual walk-in 'Jack and Jill closets, double sinks, tandem shower, brand new Toto floating toilet and a luxurious soaking tub - the perfect spot to unwind at the end of the day.An attached mother-in-law/guest suite adds incredible flexibility, featuring its own mini kitchen, living area, bedroom, walk in closet, water heater, and full bath - ideal for guests or extended family. You'll also find a dedicated under-air (brand new LG minisplit) office space in the garage with plenty of room for remote work or creative projects. This area could also be used as a home gym and/or under air storage. This home has over 200k in upgrades!!!Step outside to a beautifully landscaped yard with a lime, banana and mango trees, a sparkling state-of-the-art pool and spa that has all top-of-the-line Pentair equipment, which can be controlled by an app. Enjoy multiple outdoor spaces, from lounging by the pool to gathering around the custom fire pit area under outdoor twinkling string lights. The Lorax cameras and the luxurious full fencing around both the front and back provide you with added security, privacy, and a high-end aesthetic. The front door locks, pool equipment, garage doors and cameras are all able to be controlled through your phone. This home blends comfort, versatility, and style in an unbeatable location - a true hidden gem just minutes from downtown and within walking distance to restaurants, the Alliance Art Center and more.
View MoreCourtesy of
Agency Name: Loffreno Real Estate, Inc.
Agency Phone: 239-463-2999
Agent Name: Summer Stockton
Presented by
Agency Title: The Keyes Company
Agency Phone:
Request Info
Send an email with a link to
1325 Caloosa Vista Rd, Fort Myers, FL 33901.
Email 1325 Caloosa Vista Rd, Fort Myers, FL 33901
Thank you for your inquiry! As a thank you, we have a Special Mortgage Offer for You.
We would like to provide you a free, no-obligation, home loan pre-approval review.