
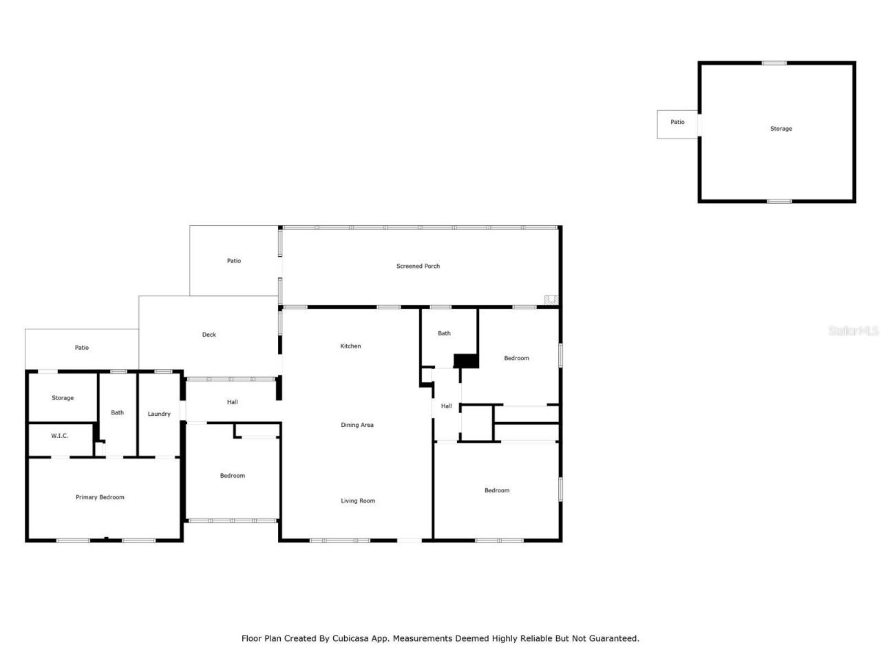
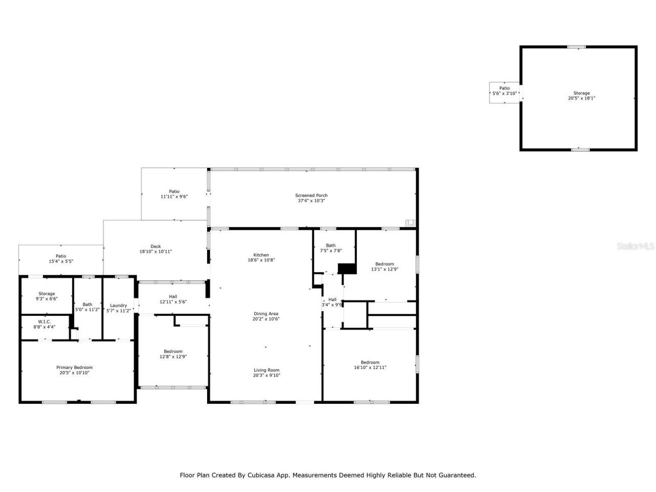
Under contract-accepting backup offers. Seller offering 15k in concessions OR a brand new roof before closing (with accepted offer)!Beautifully remodeled home now available in St. Petersburg! This home features 4 bedrooms, 2 bathrooms, a split floor plan, indoor laundry, a large backyard, and a detached structure that can be a garage or ADU (currently a large shed). It is situated on over 1/4 acre at the end of a quiet cul-de-sac. Updates include new luxury vinyl plank flooring, cabinets, quartz...Under contract-accepting backup offers. Seller offering 15k in concessions OR a brand new roof before closing (with accepted offer)!Beautifully remodeled home now available in St. Petersburg! This home features 4 bedrooms, 2 bathrooms, a split floor plan, indoor laundry, a large backyard, and a detached structure that can be a garage or ADU (currently a large shed). It is situated on over 1/4 acre at the end of a quiet cul-de-sac. Updates include new luxury vinyl plank flooring, cabinets, quartz counters, marble backsplash, fully remodeled bathrooms, a new backyard deck, and fresh paint inside and out. Are you looking for a home that offers flexible living space and the potential to earn rental income? This home has a detached structure that can be converted to an accessory dwelling unit (ADU). It also has alley access so that your tenant can enter from the rear of the home giving you true separation. This can also be used as an in-law suite, storage, studio, gym, office, garage, just use your imagination! Just down the street, enjoy gorgeous views of Lake Maggiore and Boyd Hill Nature Preserve. This home is just 10 minutes from Downtown St. Pete, 20 minutes from St. Pete Beach, 25 minutes from St Pete/Clearwater International Airport, and 5 minutes from I-275 for your commuting needs. Come see this top-notch home today!
View MoreCourtesy of
Agency Name: SOUTHERN LIFE REALTY
Agency Contact: 727-642-1758
Agent Name: Michael White
Presented by
Agency Title: The Keyes Company
Agency Phone:
Request Info
Send an email with a link to
1400 23rd Avenue S, Saint Petersburg, FL 33705.
Email 1400 23rd Avenue S, Saint Petersburg, FL 33705
Thank you for your inquiry! As a thank you, we have a Special Mortgage Offer for You.
We would like to provide you a free, no-obligation, home loan pre-approval review.