
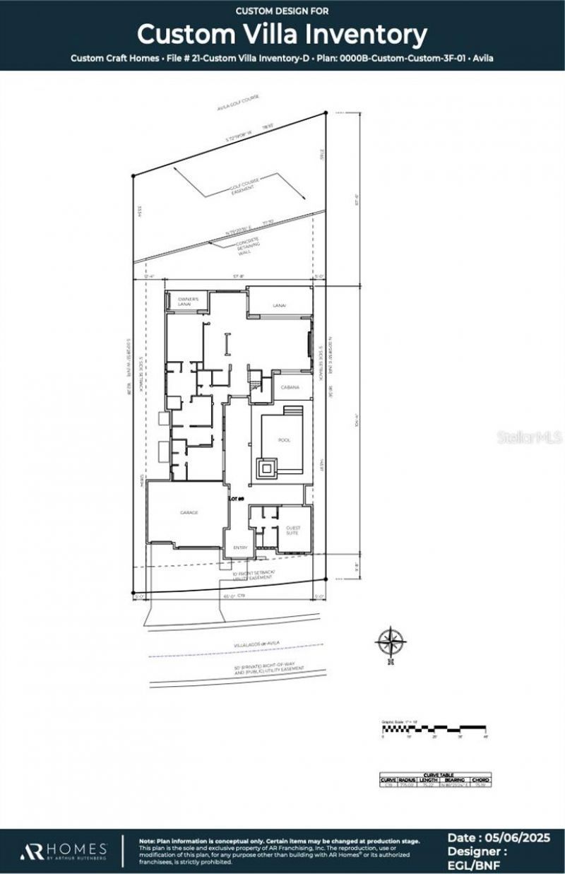
Pre-Construction. To be built. Private Collection Custom Spanish-Mission Style Luxury Villa by AR Homes (Arthur Rutenberg) on the Golf Course in Avila - Wake up to sweeping golf course and water views as you build your custom dream home in Avila, one of Tampa Bay's most sought-after guard-gated communities.Perfectly positioned along the 2nd tee box, this custom-designed villa offers a rare blend of privacy, scenery, and timeless design.At the heart of the home, a private interior courtyard creat...Pre-Construction. To be built. Private Collection Custom Spanish-Mission Style Luxury Villa by AR Homes (Arthur Rutenberg) on the Golf Course in Avila - Wake up to sweeping golf course and water views as you build your custom dream home in Avila, one of Tampa Bay's most sought-after guard-gated communities.Perfectly positioned along the 2nd tee box, this custom-designed villa offers a rare blend of privacy, scenery, and timeless design.At the heart of the home, a private interior courtyard creates a true resort-like setting, featuring a pool, spa, and outdoor kitchen designed for year-round Florida living.Inside, a well-designed layout includes a luxurious owner's retreat, private guest suite/casita, expansive great room, and second-floor bonus space, offering flexibility for family and guests.This home is part of AR Homes' Private Collection, representing their highest level of design, finishes, and craftsmanship-featuring a chef's kitchen with Wolf and Sub-Zero appliances, a dedicated wine storage feature, and a curated selection of high-end materials throughout.Permit has been approved, allowing a faster path to construction. There is still time for a buyer to personalize selections and tailor the home to their individual style.This is a unique opportunity to own a custom home on the golf course in Avila-combining location, design, and personalization in a way that is rarely available.Contact the listing agent for full specifications, design options, and timeline details.
View MoreCourtesy of
Agency Name: CHARLES RUTENBERG REALTY INC
Agency Contact: 866-580-6402
Agent Name: Chris Conti
Presented by
Agency Title: The Keyes Company
Agency Phone:
Request Info
Send an email with a link to
16912 Villalagos De Avila, Lutz, FL 33548.
Email 16912 Villalagos De Avila, Lutz, FL 33548
Thank you for your inquiry! As a thank you, we have a Special Mortgage Offer for You.
We would like to provide you a free, no-obligation, home loan pre-approval review.