
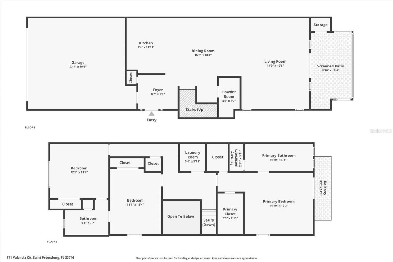
Under contract-accepting backup offers. Designed for California and New York buyers relocating to Florida, this beautifully updated end-unit residence sets the standard for refined, lock-and-leave living. Located within the private, gated Villas of Carillon, this designer-curated two-story home offers a sophisticated blend of modern style, comfort, and privacy in one of St. Petersburg's most desirable communities.Thoughtfully redesigned throughout, the home balances sleek contemporary finishes w...Under contract-accepting backup offers. Designed for California and New York buyers relocating to Florida, this beautifully updated end-unit residence sets the standard for refined, lock-and-leave living. Located within the private, gated Villas of Carillon, this designer-curated two-story home offers a sophisticated blend of modern style, comfort, and privacy in one of St. Petersburg's most desirable communities.Thoughtfully redesigned throughout, the home balances sleek contemporary finishes with warm, inviting spaces, showcasing a level of attention to detail that is immediately felt. The main level features a bright, spacious kitchen appointed with quartz countertops and streamlined European-style cabinetry, opening effortlessly to expansive living and dining areas ideal for both everyday living and entertaining.Sliding doors lead to a screened-in back porch, creating a serene retreat to unwind while enjoying peaceful pond and wooded surroundings. The seamless indoor-outdoor flow enhances the home's relaxed yet refined lifestyle.Upstairs, three well-appointed bedrooms include a tranquil primary suite featuring dual walk-in closets, a beautifully updated en-suite bath, and a private balcony overlooking the water and natural landscape. Two additional bedrooms share a fully renovated second bath, while a conveniently located second-floor laundry room adds ease to daily living.Additional highlights include a two-car attached garage with built-in shelving and ample storage throughout. Residents of Villas of Carillon enjoy access to a resort-style pool, clubhouse, and scenic walking and biking paths, all just minutes from downtown St. Petersburg, Tampa, major airports, world-renowned beaches, shopping, and dining. A turnkey opportunity offering elevated design, low-maintenance living, and an exceptional location - without compromise.
View MoreCourtesy of
Agency Name: THE AGENCY FL
Agency Contact: 407-335-4119
Agent Name: Jennifer Spinelli
Presented by
Agency Title: The Keyes Company
Agency Phone:
Request Info
Send an email with a link to
171 Valencia Circle, Saint Petersburg, FL 33716.
Email 171 Valencia Circle, Saint Petersburg, FL 33716
Thank you for your inquiry! As a thank you, we have a Special Mortgage Offer for You.
We would like to provide you a free, no-obligation, home loan pre-approval review.