
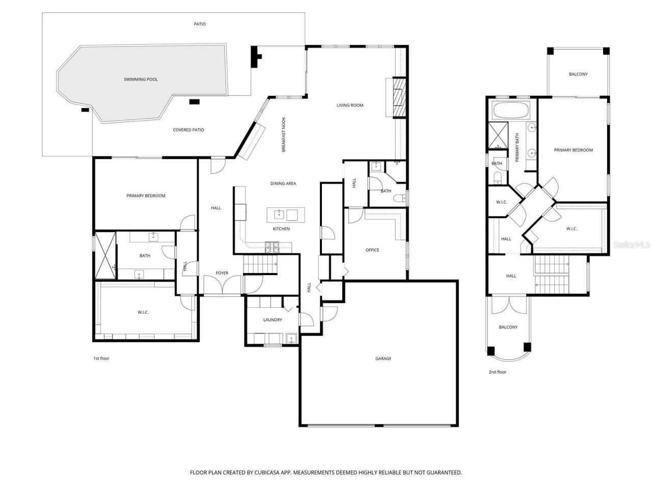
This beautifully updated waterfront residence offers a seamless blend of tropical elegance and modern luxury in the highly sought-after Venetian Isles community. With three spacious bedrooms and three impeccably designed bathrooms, this two-story home is thoughtfully crafted to maximize comfort while showcasing breathtaking views of downtown St. Petersburg. The first floor is designed for both everyday living and entertaining, featuring a chef's kitchen equipped with premium Sub-Zero appliances,...This beautifully updated waterfront residence offers a seamless blend of tropical elegance and modern luxury in the highly sought-after Venetian Isles community. With three spacious bedrooms and three impeccably designed bathrooms, this two-story home is thoughtfully crafted to maximize comfort while showcasing breathtaking views of downtown St. Petersburg. The first floor is designed for both everyday living and entertaining, featuring a chef's kitchen equipped with premium Sub-Zero appliances, a Wolf gas cooktop and oven, a Bosch dishwasher, a wine refrigerator, granite countertops, backsplash, and a large center island/bar. Elegant travertine flooring flows throughout, leading into the inviting living room anchored by a tiled gas log fireplace and built in glass cabinets, complemented by hurricane-rated windows and doors for added security and peace of mind. A secondary primary suite on the main level offers a private retreat, complete with a generous walk-in closet and serene views of the pool and waterfront. An additional bedroom-currently used as an office-sits conveniently near a full bathroom just outside its entrance. The entire second floor is dedicated to the expansive primary suite, creating a true sanctuary. This space features an oversized walk-in closet, a private office, and two balconies-one facing the front and one overlooking the rear. The rear balcony captures stunning views of the canal, Tampa Bay, and the downtown skyline. Additional highlights include a water softener/filter, irrigation system, a tankless gas water heater for efficient, on-demand comfort, a spacious three-car garage with upgraded storage, and a grand circular paver driveway. Outdoor living is equally impressive. Boating enthusiasts will appreciate deep sailboat water access, a private dock, boat lift, and a newer seawall. The custom Gunite saltwater pool and spa area, along with multiple balconies, provide the perfect setting for entertaining or simply enjoying peaceful waterfront sunsets. With its luxurious finishes, exceptional layout, and prime location, this home presents a rare opportunity to experience the very best of St. Petersburg waterfront living.
View MoreCourtesy of
Agency Name: RE/MAX ACTION FIRST OF FLORIDA
Agency Contact: 727-531-2006
Agent Name: Kathryn Krayer Zimring
Presented by
Agency Title: The Keyes Company
Agency Phone:
Request Info
Send an email with a link to
1939 Hawaii Avenue Ne, Saint Petersburg, FL 33703.
Email 1939 Hawaii Avenue Ne, Saint Petersburg, FL 33703
Thank you for your inquiry! As a thank you, we have a Special Mortgage Offer for You.
We would like to provide you a free, no-obligation, home loan pre-approval review.