
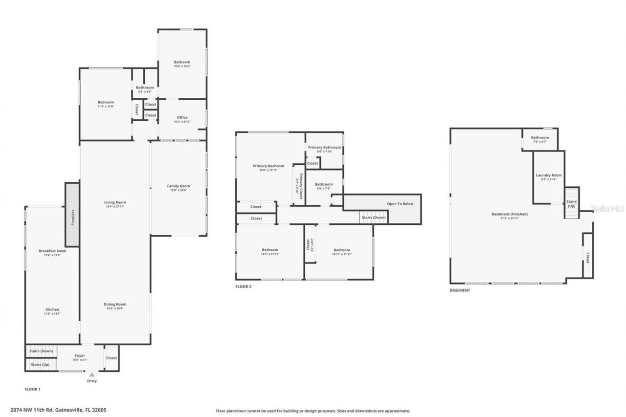
Creekside Mid-Century Modern with a pool, presence, and personality - ready for its next chapter.Located just minutes from the University of Florida, this home offers convenience for faculty, medical professionals, and anyone seeking proximity to campus. With five bedrooms and flexible living spaces, it also presents a compelling opportunity for a parent investing in Gainesville real estate while providing housing for their Baby Gator - or for someone envisioning a true Gators game day headquart...Creekside Mid-Century Modern with a pool, presence, and personality - ready for its next chapter.Located just minutes from the University of Florida, this home offers convenience for faculty, medical professionals, and anyone seeking proximity to campus. With five bedrooms and flexible living spaces, it also presents a compelling opportunity for a parent investing in Gainesville real estate while providing housing for their Baby Gator - or for someone envisioning a true Gators game day headquarters with space to host your whole crew in style.Set on over 3/4 of an acre along Hogtown Creek, this beautifully designed Mid-Century Modern home offers just under 4,000 square feet of preserved character and meaningful updates. Built in 1957, the 5-bedroom plus office, 3.5-bath residence showcases many original features, including Ocala block construction, exposed wood beams, ornate ceilings, terrazzo floors, clerestory windows, and rich wood paneling.A lush tropical approach leads to the front porch and tiled foyer. Straight ahead, the living and dining spaces open beneath beamed ceiling with a cozy wood-burning fireplace. Wood floors and sliding glass doors connect seamlessly to a private walled courtyard. Just off the living room, the Florida Room features high ceilings, clerestory windows, skylights, and additional courtyard access.Nearby are a private office, two guest bedrooms, and a Jack-and-Jill bath. The thoughtfully updated kitchen offers custom wood cabinetry, Silestone countertops, a gas range, breakfast nook, a distinctive wood-burning oven framed by mosaic columns, and new appliances. Walls of glass and sliding doors open to the covered screened porch and overlook the pool, filling the home with natural light.Upstairs, two guest bedrooms share a vintage-inspired hall bath. At the end of the corridor, the Primary Suite serves as a private retreat, showcasing preserved mid-century character and a beautifully maintained tile bath.A separate stairway leads to a spacious flex room ideal for a studio, family room, or guest retreat. Terrazzo floors with a North Star inlay, built-in cabinets, a half bath, and a full laundry room with washer and dryer complete the space. A wall of sliding glass doors opens to a brick patio overlooking the gardens and creek.The screened pool, designed by Charlie Brown and featuring his signature wraparound ledge, is surrounded by a paver deck and outdoor shower. The .77-acre property spans both sides of Hogtown Creek and includes a two-car carport, a small grove of citrus trees, and bamboo clusters, creating a private and peaceful setting.Major updates include a roof (2019), full re-plumb (2017), WHOLE-HOUSE generator installed in 2020 with warranty through 2030, updated electrical (2025), new water heater (2025), updated windows, and new kitchen appliances.Zoned for Parker Elementary, Westwood Middle, and Gainesville High School. Voluntary HOA.
View MoreCourtesy of
Agency Name: ENGEL & VOLKERS GAINESVILLE
Agency Contact: 386-623-2806
Agent Name: Kush Karve
Presented by
Agency Title: The Keyes Company
Agency Phone:
Request Info
Send an email with a link to
2074 NW 11th Road, Gainesville, FL 32605.
Email 2074 NW 11th Road, Gainesville, FL 32605
Thank you for your inquiry! As a thank you, we have a Special Mortgage Offer for You.
We would like to provide you a free, no-obligation, home loan pre-approval review.