
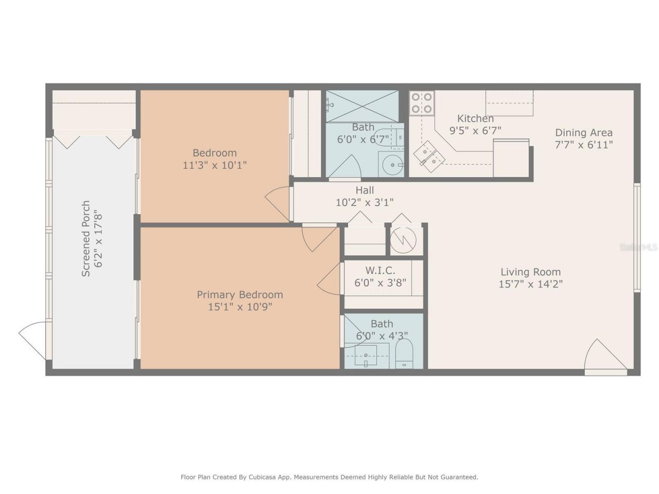
Welcome to Covington Court!This beautifully updated FIRST-floor CORNER unit is move-in ready and waiting for its new owner. Featuring 2 spacious bedrooms and 1.5 bathrooms, the home combines comfort with modern style.The primary suite has plenty of room that could easily fit a king sized bed, as well as a walk in closet and sliding doors that lead you to the Florida sun-room off the back.The kitchen has been tastefully renovated with brand-new white cabinetry, quartz countertops, and new applian...Welcome to Covington Court!This beautifully updated FIRST-floor CORNER unit is move-in ready and waiting for its new owner. Featuring 2 spacious bedrooms and 1.5 bathrooms, the home combines comfort with modern style.The primary suite has plenty of room that could easily fit a king sized bed, as well as a walk in closet and sliding doors that lead you to the Florida sun-room off the back.The kitchen has been tastefully renovated with brand-new white cabinetry, quartz countertops, and new appliances including a microwave and refrigerator. The open layout flows seamlessly into the living area, creating a bright and inviting space.Step outside and enjoy the community amenities just a short stroll away-a sparkling pool, lush central courtyard that features both charcoal and gas grills perfect for entertaining.Located only minutes from the 4th Street corridor's restaurants, shops, and entertainment, just 10 minutes to vibrant Downtown St. Pete, and 20 minutes to the Gulf beaches, this condo offers the very best of the Florida lifestyle.
View MoreCourtesy of
Agency Name: CORCORAN DWELLINGS
Agency Contact: 727-888-4663
Agent Name: Alexa Dennis
Presented by
Agency Title: The Keyes Company
Agency Phone:
Request Info
Send an email with a link to
209 NE Lincoln Circle N, Unit 109, Saint Petersburg, FL 33702.
Email 209 NE Lincoln Circle N, Unit 109, Saint Petersburg, FL 33702
Thank you for your inquiry! As a thank you, we have a Special Mortgage Offer for You.
We would like to provide you a free, no-obligation, home loan pre-approval review.