
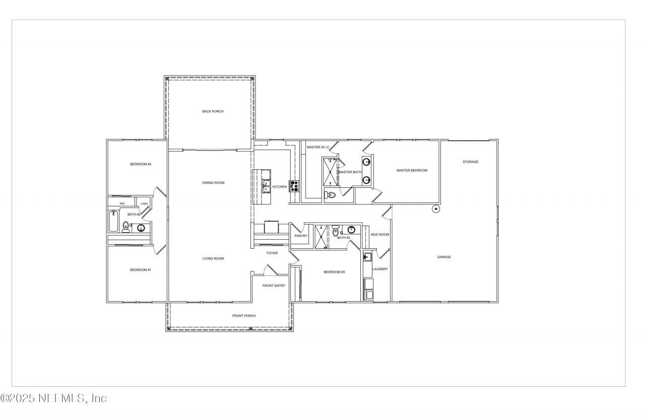
Don't miss your opportunity to own this MOVE IN READY new construction home, perfectly situated on a picturesque 10 acre lot. Designed for both comfort and functionality, this home features a 3-car garage with front and rear entry, offering over 600 square feet of garage space, perfect for lawn equipment or extra storage. With NO HOA or CDD, you have the freedom to make this property your own!!Step inside to a thoughtfully designed floor plan that flows seamlessly from room to room. The home off...Don't miss your opportunity to own this MOVE IN READY new construction home, perfectly situated on a picturesque 10 acre lot. Designed for both comfort and functionality, this home features a 3-car garage with front and rear entry, offering over 600 square feet of garage space, perfect for lawn equipment or extra storage. With NO HOA or CDD, you have the freedom to make this property your own!!Step inside to a thoughtfully designed floor plan that flows seamlessly from room to room. The home offers 4 bedrooms, 3 bathrooms, and a dining area and modern finishes throughout. The gourmet kitchen is a true showstopper, boasting 42'' soft-close shaker cabinets, quartz countertops, and an unforgettable walk-in pantry. Additional highlights include a mudroom, a laundry room with utility sink. Relax on the oversized front and rear porches, ideal for enjoying peaceful views of your expansive property. The primary suite features a spa-like bath with a walk-in shower and dual vanities. In addition, a private guest suite with an ensuite bath makes this home perfect for multigenerational living or visiting guests.Home is completed. Photos are of another property -- Pictures coming 4/7!
View MoreCourtesy of
Agency Name: RIVER CITY RENTALS AND REALTY
Agent Name: STEPHANIE FRIES
Presented by
Agency Title: The Keyes Company
Agency Phone:
Request Info
Send an email with a link to
2318 Steel Bridge Road, Macclenny, FL 32063.
Email 2318 Steel Bridge Road, Macclenny, FL 32063
Thank you for your inquiry! As a thank you, we have a Special Mortgage Offer for You.
We would like to provide you a free, no-obligation, home loan pre-approval review.