
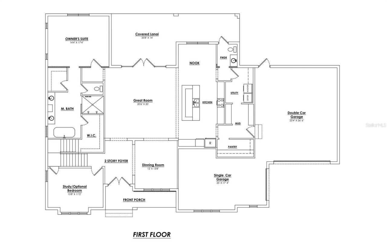
Pre-Construction. To be built. Set on nearly 3 acres with over 300 feet of Lake Tarpon shoreline, this is a rare opportunity to bring a custom-designed waterfront estate to life. Tucked beyond private gates at the end of a quiet cul-de-sac, the privacy and lakefront setting are truly exceptional.The proposed home reflects a timeless coastal aesthetic, with a crisp white brick fa?ade complemented by dark roofing and warm wood accents, creating a refined and inviting home. Front-facing gables add ...Pre-Construction. To be built. Set on nearly 3 acres with over 300 feet of Lake Tarpon shoreline, this is a rare opportunity to bring a custom-designed waterfront estate to life. Tucked beyond private gates at the end of a quiet cul-de-sac, the privacy and lakefront setting are truly exceptional.The proposed home reflects a timeless coastal aesthetic, with a crisp white brick fa?ade complemented by dark roofing and warm wood accents, creating a refined and inviting home. Front-facing gables add dimension and architectural character, while the arched entryway introduces a subtle softness that elevates the overall design.Windows invite natural light and reinforce the connection between the home and its waterfront setting. A side-entry garage preserves the integrity of the front elevation, while landscaping enhances the home.Inside, the first floor centers around a spacious great room that opens seamlessly to the outdoor living areas, creating a natural extension toward the water. A private owner's suite offers a quiet retreat, while a dedicated office or optional bedroom adds flexibility. The expansive kitchen and main living areas are designed for effortless everyday living and elevated entertaining.Upstairs, additional bedrooms are paired with a spacious game room and flexible living space, ideal for guests or multigenerational living.The setting itself is what truly sets this property apart. From the moment you enter, the homesite opens to panoramic water views, mature trees, and the calm, private ambiance of Lake Tarpon. A 6,000 lb boat lift, open dock with electric and water, and direct access to one of the area's most sought-after freshwater lakes allow for year-round boating, fishing, and recreation directly from your backyard.Opportunities that combine land, location, and a clear path to build are increasingly rare. This is not just a homesite, it's a vision ready to be brought to life.Full home plans are available, while still allowing buyers the opportunity to personalize their selections. Exact build specifications to be determined between Buyer and Developer. All site visits must be scheduled in advance. Please do not enter the property without prior authorization.
View MoreCourtesy of
Agency Name: SOUTHERN LIFE REALTY
Agency Contact: 727-642-1758
Agent Name: Kelsi Ward
Presented by
Agency Title: The Keyes Company
Agency Phone:
Request Info
Send an email with a link to
2661 Cyprus Drive, Palm Harbor, FL 34684.
Email 2661 Cyprus Drive, Palm Harbor, FL 34684
Thank you for your inquiry! As a thank you, we have a Special Mortgage Offer for You.
We would like to provide you a free, no-obligation, home loan pre-approval review.