
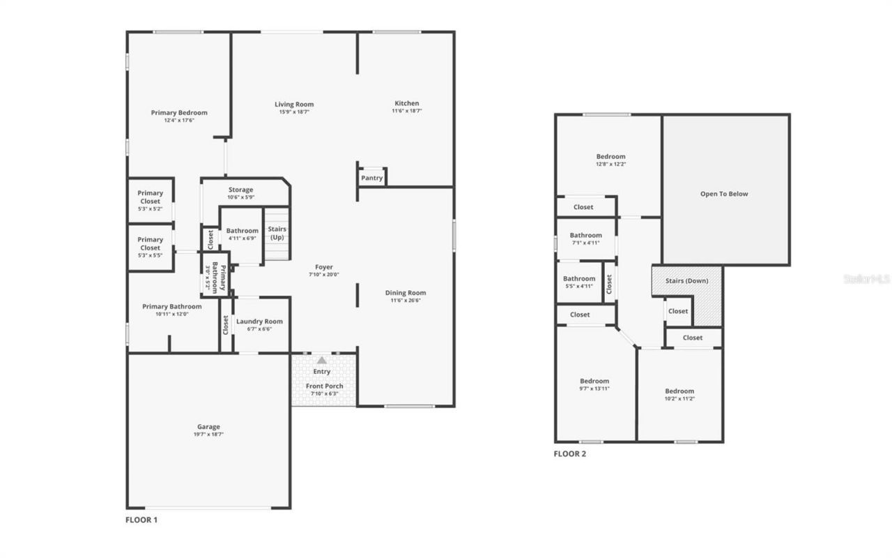
One or more photo(s) has been virtually staged. Enjoy peaceful lake views at 2838 Sweetspire Circle in Kissimmee, FL, where this spacious 4-bedroom, 2-bathroom home offers 2,528 square feet of comfortable and versatile living. The layout features multiple living and dining areas with tile flooring throughout, creating a clean, cohesive feel ideal for both entertaining and everyday comfort. The kitchen provides ample space and functionality, perfect for daily living and gatherings. The primary su...One or more photo(s) has been virtually staged. Enjoy peaceful lake views at 2838 Sweetspire Circle in Kissimmee, FL, where this spacious 4-bedroom, 2-bathroom home offers 2,528 square feet of comfortable and versatile living. The layout features multiple living and dining areas with tile flooring throughout, creating a clean, cohesive feel ideal for both entertaining and everyday comfort. The kitchen provides ample space and functionality, perfect for daily living and gatherings. The primary suite and additional bedrooms are generously sized, offering flexibility for families, guests, or a home office setup. This home has been freshly painted inside and out. Major systems have been recently updated, including an HVAC system, stove, hot water tank, and garbage disposal-all less than a year old. Step outside to take in the serene water view, offering a sense of privacy and relaxation. A spacious two-car garage and interior laundry area add to the home's overall convenience. Ideally located just minutes from shopping, dining, schools, and parks, with quick access to US-192, Florida's Turnpike, and I-4, this property offers both everyday convenience and excellent connectivity to Orlando and surrounding attractions-making it a great option for homeowners and investors alike.
View MoreCourtesy of
Agency Name: EXP REALTY LLC
Agency Contact: 888-883-8509
Agent Name: Carlos German
Presented by
Agency Title: The Keyes Company
Agency Phone:
Request Info
Send an email with a link to
2838 Sweetspire Circle , Kissimmee, FL 34746.
Email 2838 Sweetspire Circle , Kissimmee, FL 34746
Thank you for your inquiry! As a thank you, we have a Special Mortgage Offer for You.
We would like to provide you a free, no-obligation, home loan pre-approval review.