
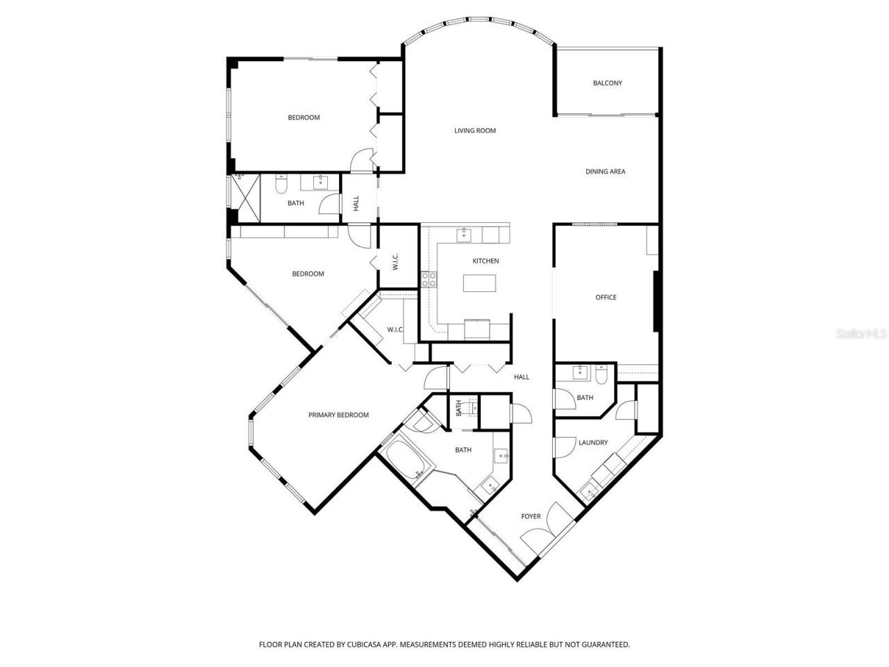
Under contract-accepting backup offers. LUXURY, LOCATION and LIFESTYLE - seamlessly intertwined in the heart of downtown St. Petersburg. This exceptional residence offers the perfect combination of elegance, privacy, and breathtaking views of Tampa Bay-from Pier Park to the Dali Museum and beyond. Perfectly situated in an exclusive 14-story boutique building with only 32 residences-just three units per floor and two private penthouses-this home captures the essence of refined coastal living with...Under contract-accepting backup offers. LUXURY, LOCATION and LIFESTYLE - seamlessly intertwined in the heart of downtown St. Petersburg. This exceptional residence offers the perfect combination of elegance, privacy, and breathtaking views of Tampa Bay-from Pier Park to the Dali Museum and beyond. Perfectly situated in an exclusive 14-story boutique building with only 32 residences-just three units per floor and two private penthouses-this home captures the essence of refined coastal living with a sense of intimacy and sophistication that's unmatched in the city.Every detail has been thoughtfully designed to create a seamless blend of comfort and style. The open floor plan is bathed in natural light through floor-to-ceiling windows, framing panoramic water views from nearly every room. The kitchen is a masterpiece of design and function, featuring quartz countertops, kitchen island, the induction range technology provides precise temperature control, stainless-steel appliances and double ovens-perfect for hosting gourmet dinners or casual gatherings.The primary suite is a private retreat designed for relaxation, complete with a deep soaking tub, oversized walk-in shower with dual showerheads, dual vanities, and generous custom closets. A spacious guest bedroom and a versatile den or office - easily used as a bedroom-provide flexibility for guests or work-from-home living. A full laundry room adds everyday convenience.The building's resort-style amenities elevate the experience of home. Residents enjoy concierge service, a heated pool surrounded by lush landscaping, a state-of-the-art fitness center, billiards lounge, club room with catering kitchen, and an inviting outdoor pavilion ideal for entertaining al fresco. The property includes two secured garage parking spaces and two private storage units-one climate-controlled and another conveniently located on level two near your parking space-ensuring every practical need is met with ease. For hosting family and friends, an exclusive two-bedroom guest suite is available for short-term stays, offering privacy and comfort.Just steps from Beach Drive, residents are immersed in St. Petersburg's vibrant downtown scene. From world-class museums and waterfront parks to boutique shopping, art galleries, and acclaimed restaurants, every cultural and culinary experience is right outside your door. Whether enjoying a peaceful morning walk along the marina or an evening of fine dining and entertainment, this address places you at the very center of it all.
View MoreCourtesy of
Agency Name: COMPASS FLORIDA LLC
Agency Contact: 727-339-7902
Agent Name: Patti Halpin
Presented by
Agency Title: The Keyes Company
Agency Phone:
Request Info
Send an email with a link to
288 Beach Drive Ne, Unit 6B, Saint Petersburg, FL 33701.
Email 288 Beach Drive Ne, Unit 6B, Saint Petersburg, FL 33701
Thank you for your inquiry! As a thank you, we have a Special Mortgage Offer for You.
We would like to provide you a free, no-obligation, home loan pre-approval review.