
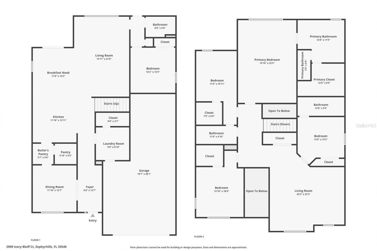
One or more photo(s) has been virtually staged. Welcome to the gorgeous two-story home built in 2024, nestled on a quiet cul-de-sac in the desirable Cobblestone community. With 5 spacious bedrooms and 4 full bathrooms, this 3,531 square foot residence offers both comfort and versatility. The open-concept kitchen features modern stainless steel appliances, double ovens, a large island with bar seating, and abundant cabinet space and large walk-in pantry. A downstairs guest suite with adjacent bat...One or more photo(s) has been virtually staged. Welcome to the gorgeous two-story home built in 2024, nestled on a quiet cul-de-sac in the desirable Cobblestone community. With 5 spacious bedrooms and 4 full bathrooms, this 3,531 square foot residence offers both comfort and versatility. The open-concept kitchen features modern stainless steel appliances, double ovens, a large island with bar seating, and abundant cabinet space and large walk-in pantry. A downstairs guest suite with adjacent bathroom provides privacy and convenience, while the oversized primary bedroom upstairs offers a true retreat with a luxurious en suite and walk-in closet. Multiple living areas, including a large upstairs loft and a stylish downstairs great room, provide ample space for relaxation and entertaining. Enjoy peaceful pond views with no neighbors on one side and a generously sized backyard ready for customization. Complete with a 3-car garage and set on a quiet cul-de-sac, this stunning home blends comfort, function, and privacy in one of Zephyrhills' most sought-after neighborhoods.
View MoreCourtesy of
Agency Name: 54 REALTY LLC
Agency Contact: 813-435-5411
Agent Name: Kari Hazeltine
Presented by
Agency Title: The Keyes Company
Agency Phone:
Request Info
Send an email with a link to
2909 Ivory Bluff Court, Zephyrhills, FL 33540.
Email 2909 Ivory Bluff Court, Zephyrhills, FL 33540
Thank you for your inquiry! As a thank you, we have a Special Mortgage Offer for You.
We would like to provide you a free, no-obligation, home loan pre-approval review.