
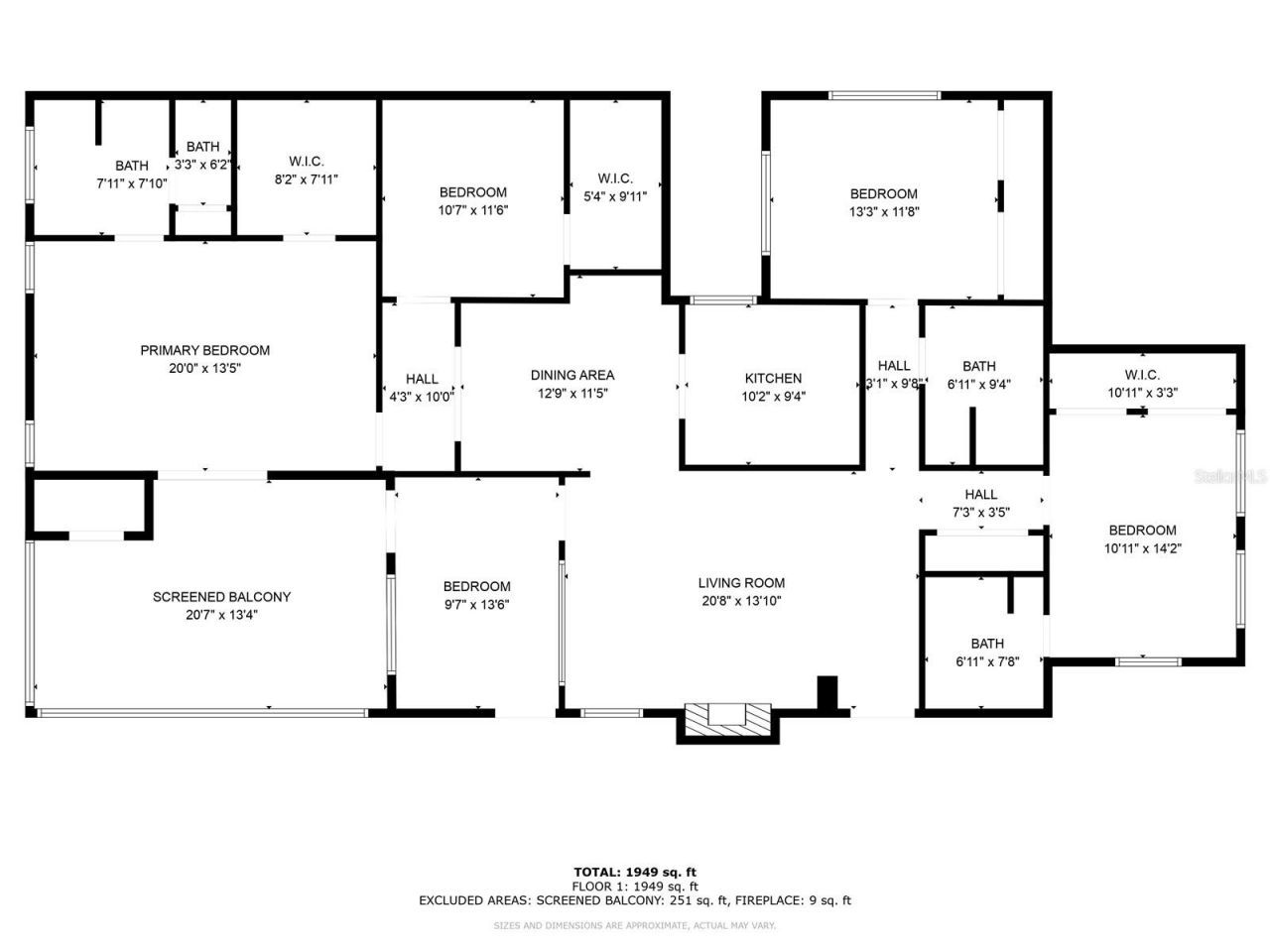
Welcome to this charming riverfront retreat located in the quaint town of Nobleton. This spacious home features over 2,000 square feet of living space with 4 bedrooms and 3 full bathrooms. The split floor plan offers ideal privacy with two of the bedrooms having en-suite bathrooms- there is also an additional room that can be used as an office, den or playroom! French doors from the master bedroom lead you to an oversized screened-in patio with views of the river, making it an ideal spot for ent...Welcome to this charming riverfront retreat located in the quaint town of Nobleton. This spacious home features over 2,000 square feet of living space with 4 bedrooms and 3 full bathrooms. The split floor plan offers ideal privacy with two of the bedrooms having en-suite bathrooms- there is also an additional room that can be used as an office, den or playroom! French doors from the master bedroom lead you to an oversized screened-in patio with views of the river, making it an ideal spot for entertaining. The generous lot spans over 0.6 acres and is fully fenced. There are double gates at both the front and rear of the property and a large, covered parking pad for convenience. Step through the rear gates to discover a riverside paradise featuring 100 feet of inlet with direct access to the Withlacoochee River. Perfect for outdoor enthusiasts this home invites you to bring your kayaks, boats, and RVs. Ideally situated for nature lovers, it is just a short walk to Lake Townsen Preserve and the Withlacoochee Trail and State Forest making it perfect for hiking, biking, and boating. Enjoy a meal after your adventures at the local Riverside restaurant across the street from the property. The potential for this property as a vacation home or short-term rental is truly limitless. Schedule a showing to make this well-built home your own. New Roof 2022 and AC in 2021.
View MoreCourtesy of
Agency Name: CHARLES RUTENBERG REALTY INC
Agency Contact: 866-580-6402
Agent Name: Amie Lenhart
Presented by
Agency Title: The Keyes Company
Agency Phone:
Request Info
Send an email with a link to
29133 Lawton Drive, Nobleton, FL 34661.
Email 29133 Lawton Drive, Nobleton, FL 34661
Thank you for your inquiry! As a thank you, we have a Special Mortgage Offer for You.
We would like to provide you a free, no-obligation, home loan pre-approval review.