
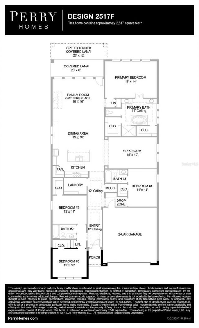
Under Construction. The front porch opens into a welcoming entryway with an extended tray ceiling that embraces the main hallway. Two secondary bedrooms with walk-in closets and full bathroom are off the main hall. A full guest suite with a private bathroom and ample closet space is adjacent. You pass the laundry room as you enter into the kitchen which features an island with built-in seating, a 5-burner gas cooktop, and corner pantry. A bonus flex room is across from the kitchen. The dining ar...Under Construction. The front porch opens into a welcoming entryway with an extended tray ceiling that embraces the main hallway. Two secondary bedrooms with walk-in closets and full bathroom are off the main hall. A full guest suite with a private bathroom and ample closet space is adjacent. You pass the laundry room as you enter into the kitchen which features an island with built-in seating, a 5-burner gas cooktop, and corner pantry. A bonus flex room is across from the kitchen. The dining area flows from the kitchen to the connecting family room which offers abundance of natural light from its sliding glass doors and access to the backyard extended covered lanai. The primary bedroom has a wall of windows overlooking the backyard. Double doors lead into the bathroom which hosts dual vanities, a freestanding tub, glass enclosed shower and two walk-in closets. The drop zone is off the two-car garage.
View MoreCourtesy of
Agency Name: PERRY HOMES
Agency Contact: 713-948-6666
Agent Name: Toby Jones
Presented by
Agency Title: The Keyes Company
Agency Phone:
Request Info
Send an email with a link to
3904 Country View Court , Bradenton, FL 34211.
Email 3904 Country View Court , Bradenton, FL 34211
Thank you for your inquiry! As a thank you, we have a Special Mortgage Offer for You.
We would like to provide you a free, no-obligation, home loan pre-approval review.