
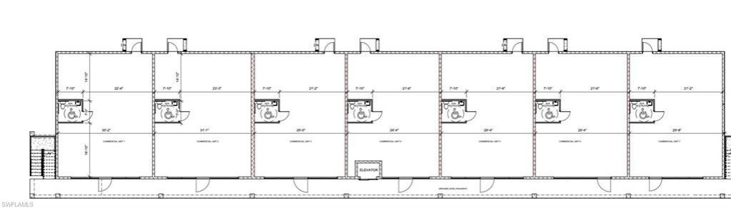
Prime development opportunity in South Cape Coral! This entitled land parcel is offered with approved plans for a mixed-use project featuring 39 workforce housing apartments and 8300 sq ft of commercial space. The site is zoned CP (confirm with zoning for intended use), offering an ideal live-work scenario for residents. Situated in a rapidly growing area, the property provides excellent access to public transportation, major roadways, schools, parks, dining options, and healthcare facilities. H...Prime development opportunity in South Cape Coral! This entitled land parcel is offered with approved plans for a mixed-use project featuring 39 workforce housing apartments and 8300 sq ft of commercial space. The site is zoned CP (confirm with zoning for intended use), offering an ideal live-work scenario for residents. Situated in a rapidly growing area, the property provides excellent access to public transportation, major roadways, schools, parks, dining options, and healthcare facilities. High rental demand and flexible use make this a standout investment opportunity, offering stable income potential through long-term residential and commercial leases. The property is deed-restricted under Florida's Live Local Bill, requiring 40% of units to be leased to individuals earning no more than 120% of the Area Median Income (AMI), which is $88,800 as of April 2024. Whether you're a developer or investor seeking to contribute to Cape Coral's workforce housing solutions while capturing long-term value, this property is ready for action.Buyers have options:1) Acquire the entitled lot (3.5M) and building plans to build under their own contractor and financing.2) Use Curran Young and the current construction estimate we have. $250/sf = 18.5M3) Join us, if you are an accredited investor, through our fund. Pre-construction pricing is subject to change. Specifications, features, and availability may be modified prior to contract. Property is currently undeveloped and not subject to any lease or rental agreements. Buyer is responsible for securing any future tenants or rental arrangements.
View MoreCourtesy of
Agency Name: Coast Life Properties LLC
Agency Phone: 239-402-5581
Agent Name: Kyle Doyon
Presented by
Agency Title: The Keyes Company
Agency Phone:
Request Info
Send an email with a link to
430 SW 47th Ter, Cape Coral, FL 33914.
Email 430 SW 47th Ter, Cape Coral, FL 33914
Thank you for your inquiry! As a thank you, we have a Special Mortgage Offer for You.
We would like to provide you a free, no-obligation, home loan pre-approval review.