
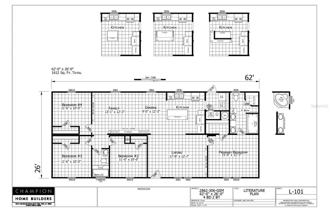
Old home was replaced with a brand new 4 bed 2 bath double wide 26' X 62' 1612 ft home built by Champion in 2024 and delivered/installed this year. Home built to Wind Zone 3 standard. Not in a park, on its own land on a quiet tree lined street off New Tampa Highway. Lot size is 85x90. Property includes part of the lake which has several species of large turtles and attracts large birds which wade and feed in it and provides a nice view. No flooding during the last 2 hurricanes (we live next door...Old home was replaced with a brand new 4 bed 2 bath double wide 26' X 62' 1612 ft home built by Champion in 2024 and delivered/installed this year. Home built to Wind Zone 3 standard. Not in a park, on its own land on a quiet tree lined street off New Tampa Highway. Lot size is 85x90. Property includes part of the lake which has several species of large turtles and attracts large birds which wade and feed in it and provides a nice view. No flooding during the last 2 hurricanes (we live next door). Not in a flood zone (zone X) and flood insurance isn't required.New central A/C unit, new power pole/panel/meter and wiring. New refrigerator, electric range, and dishwasher. Laundry room with washer/dryer hookups.Conveniently located 5 minutes from award winning Bonnet Springs Park, I-4, Silvermoon Drive-In, and 7 minutes to downtown Lakeland, 30 minutes to Tampa and 45 to Orlando (without traffic)3D/Virtual tours will be added soon. Please note that Google street & satellite view images are outdated images of the old home.
View MoreCourtesy of
Agency Name: LIST NOW REALTY, LLC
Agency Contact: 352-385-7636
Agent Name: Matt Buttner
Presented by
Agency Title: The Keyes Company
Agency Phone:
Request Info
Send an email with a link to
515 Twin Lakes Circle, Lakeland, FL 33815.
Email 515 Twin Lakes Circle, Lakeland, FL 33815
Thank you for your inquiry! As a thank you, we have a Special Mortgage Offer for You.
We would like to provide you a free, no-obligation, home loan pre-approval review.