
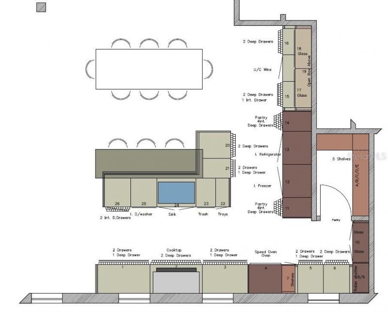
Under Construction. New Construction | Modern Concrete Homes steps from Siesta Key Beachnow under construction and scheduled for completion in approximately six months. These two identical, mirror-image modern residences are located on Palm Island, just one short block from the world-renowned Siesta Key Beach.Built with solid concrete construction and full hurricane-rated specifications, these three-story homes are designed for durability, peace of mind, and refined coastal living. Each residenc...Under Construction. New Construction | Modern Concrete Homes steps from Siesta Key Beachnow under construction and scheduled for completion in approximately six months. These two identical, mirror-image modern residences are located on Palm Island, just one short block from the world-renowned Siesta Key Beach.Built with solid concrete construction and full hurricane-rated specifications, these three-story homes are designed for durability, peace of mind, and refined coastal living. Each residence offers approximately 3,200 square feet under air, featuring four bedrooms, four and a half bathrooms, and a spacious, open-concept layout.The homes feature European kitchen cabinetry, upscale appliances, and contemporary finishes throughout. A private elevator provides seamless access from the two-car garage to all levels, enhancing comfort and everyday convenience.Outdoor living is thoughtfully integrated with a private swimming pool and a rooftop lookout terrace, ideal for entertaining, enjoying island breezes, and taking in sunsets.At this stage of construction, buyers have the unique opportunity to customize interior finishes, allowing for personal design preferences while still enjoying the benefits of brand-new, modern construction.Offering walk-to-beach proximity, modern architecture, concrete construction, and the flexibility of customization, these residences represent a rare opportunity to secure a luxury home on one of Florida's most desirable barrier islands.
View MoreCourtesy of
Agency Name: COLDWELL BANKER REALTY
Agency Contact: 941-383-6411
Agent Name: Fernanda Girard
Presented by
Agency Title: The Keyes Company
Agency Phone:
Request Info
Send an email with a link to
5351 Calle Florida, Sarasota, FL 34242.
Email 5351 Calle Florida, Sarasota, FL 34242
Thank you for your inquiry! As a thank you, we have a Special Mortgage Offer for You.
We would like to provide you a free, no-obligation, home loan pre-approval review.