
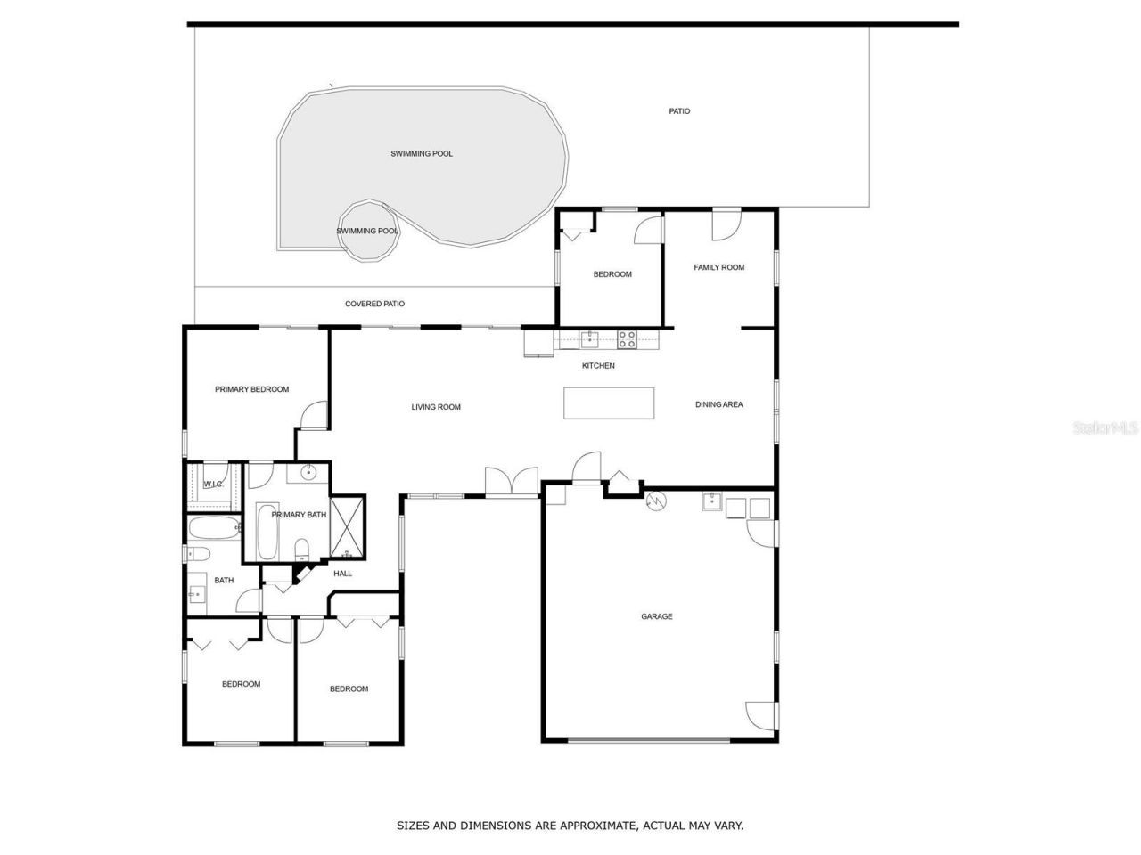
Under contract-accepting backup offers. Under the canopy of grand oaks and banyan trees, this move-in-ready FURNISHED Siesta Key POOL home offers the perfect blend of luxury and coastal charm. Located minutes from the world-famous beach and village, this retreat has been redesigned for island living with almost every inch of the home renovated to perfection! A freshly painted exterior, paver driveway, and xeriscape landscaping create a warm welcome. Inside, an open floor plan creates effortless ...Under contract-accepting backup offers. Under the canopy of grand oaks and banyan trees, this move-in-ready FURNISHED Siesta Key POOL home offers the perfect blend of luxury and coastal charm. Located minutes from the world-famous beach and village, this retreat has been redesigned for island living with almost every inch of the home renovated to perfection! A freshly painted exterior, paver driveway, and xeriscape landscaping create a warm welcome. Inside, an open floor plan creates effortless indoor-outdoor living with tile flooring, bright living area, and pocket sliding glass doors seamlessly connecting to your private backyard oasis. The expansive paradise features a sparkling pool and hot tub with new pump/heater, surrounded by new privacy fencing, and an extended paver patio. The heart of the home is the renovated chef's kitchen, boasting duo-toned soft-close cabinetry, quartz countertops, and tile backsplash. The oversized kitchen island and adjacent dining area set the stage for lively gatherings, while the cozy den opens up to the patio for effortless pool-side alfresco dining. The primary suite features direct pool access and a newly updated bathroom with soaking tub, walk-in shower, and modern finishes. Thoughtfully designed for privacy, the split floor plan includes a poolside guest room along with two additional bedrooms tucked in a private wing with an updated bathroom. Additional updates include a NEW AC system/ductwork and NEW Hot Water Heater ensuring year-round comfort. The oversized two car garage offers plenty of parking and extra space for a golf cart and beach gear. Enjoy the tranquility of the tree lined streets while still having easy access on and off the island. This home is being enjoyed by seasonal renters, but now it's your turn to enjoy island life! Whether you're looking for a lucrative FURNISHED short-term rental, a seasonal retreat, or a forever home, this renovated Siesta Key gem offers the best of island living!
View MoreCourtesy of
Agency Name: PREFERRED SHORE LLC
Agency Contact: 941-999-1179
Agent Name: Conner Ashley
Presented by
Agency Title: The Keyes Company
Agency Phone:
Request Info
Send an email with a link to
567 Venice Lane, Sarasota, FL 34242.
Email 567 Venice Lane, Sarasota, FL 34242
Thank you for your inquiry! As a thank you, we have a Special Mortgage Offer for You.
We would like to provide you a free, no-obligation, home loan pre-approval review.