
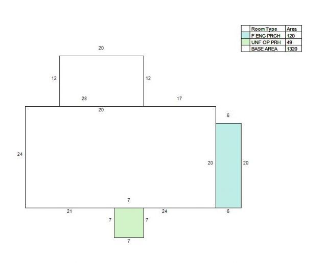
Discover a rare, high-exposure mixed-use property located at 59 Nina Street in DeFuniak Springs, Florida?an almost one-acre (.97 acre) parcel zoned for both residential and commercial use. This offering is unlike anything currently on the market in the region: it features an existing 3-bedroom, 2-bath double-wide mobile home, a dedicated office building, and a sizeable pole-barn/garage structure with ample room for expansion or storage. Positioned to benefit from highway traffic and tourist fl...Discover a rare, high-exposure mixed-use property located at 59 Nina Street in DeFuniak Springs, Florida?an almost one-acre (.97 acre) parcel zoned for both residential and commercial use. This offering is unlike anything currently on the market in the region: it features an existing 3-bedroom, 2-bath double-wide mobile home, a dedicated office building, and a sizeable pole-barn/garage structure with ample room for expansion or storage. Positioned to benefit from highway traffic and tourist flow en route to the Gulf Coast: DeFuniak Springs sits at the junction of major east-west and north-south corridors including U.S.Route 331 Florida State Road 83 (which leads directly south to Santa Rosa Beach and the Emerald Coast) and U.S. Route 90. The location captures both local commercial activity and visitor traffic bound for Florida's beaches. Comparable parcels in the immediate area report traffic counts of approximately 22,982 vehicles per day. With direct highway frontage and dual zoning, this asset is uniquely positioned to grab attention from passing motorists and traveling tourists alike. With commercial zoning in place, the property can be leveraged for a wide array of business models (e.g., professional offices, service/repair facility, storage rental, retail showroom, hospitality-adjacent), while the residential component provides occupancy flexibility or supplemental cash flow. DeFuniak Springs serves as a gateway point to the Gulf Coast and the larger Northwest Florida tourism market. The north-south US 331/SR 83 axis carries traffic from inland and interstate corridors toward beach destinations, and the ongoing improvements in the transportation infrastructure only enhance accessibility. For example, the Florida DOT has announced a $10.6 million resurfacing and intersection improvement project on Highway 331 from south of I-10 up to US 90 in DeFuniak Springs (scheduled through late 2025). Very few parcels offer nearly one acre of land with existing structures, commercial zoning, and frontage on a high-traffic highway corridor leading directly to a major tourist destination. This scarcity supports positioning this listing as a flagship asset for an investor or enterprise looking for elevated visibility, multiple income streams and strong future upside. For the discerning investor or owner-operator, 59 Nina St. offers a broad range of strategic options: * Convert the office building into a professional services hub (medical, legal, financial, wellness) leveraging highway visibility and ease of access. The office was origionally built as a resturant and has all neccisary underground waste, water and utillity features already in place. * Use the pole barn/garage for vehicle service, equipment rental, storage units, fabrication or light manufacturing?activities that benefit from high frontage, easy ingress/egress and large clear span space. * Lease or occupy the 3/2 mobile home for on-site management, short-term accommodation (depend
View MoreCourtesy of
Agency Name: Keller Williams Town & Country
Agent Name: Steven Fireman
Agency Phone: 850-201-4663
Presented by
Agency Title: The Keyes Company
Agency Phone:
Request Info
Send an email with a link to
59 Nina Street, Other Florida, FL 32433.
Email 59 Nina Street, Other Florida, FL 32433
Thank you for your inquiry! As a thank you, we have a Special Mortgage Offer for You.
We would like to provide you a free, no-obligation, home loan pre-approval review.