
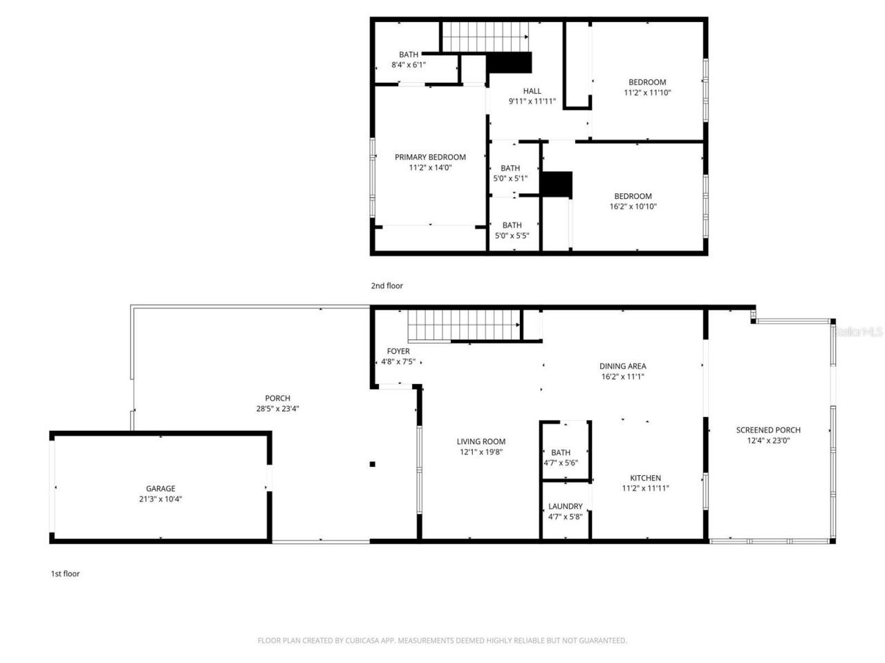
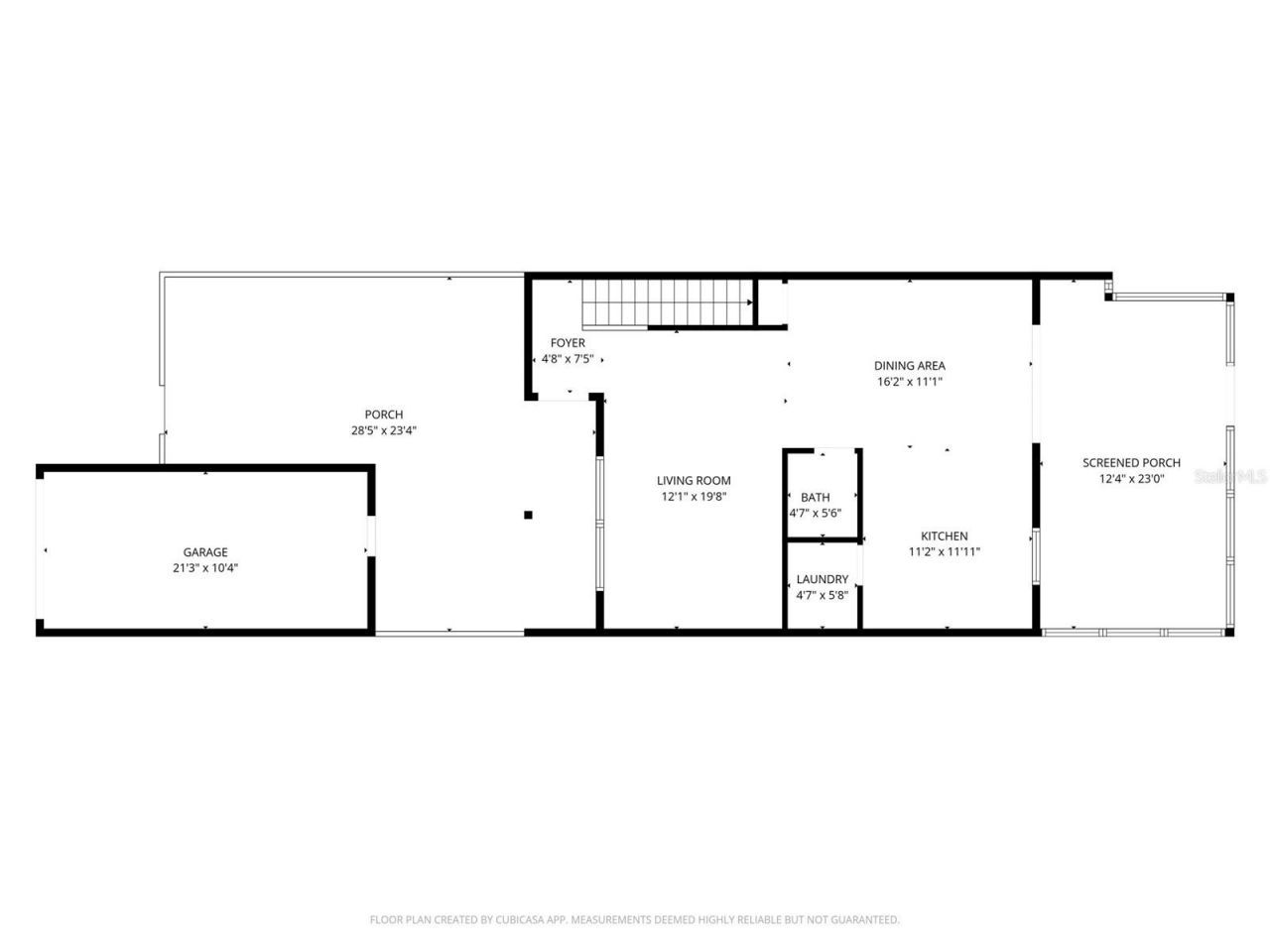
One or more photo(s) has been virtually staged. Welcome to 6257 Cape Hatteras Way NE #5-an extraordinarily rare offering in the coveted Mariners Pass community, where luxury, lifestyle, and direct water access converge. One of only a select few residences in the entire community to feature a DEEDED BOAT SLIP just steps from your back door, this is a true boater's dream and an opportunity that seldom comes to market. From the moment you enter, the home exudes refined coastal sophistication. Thoug...One or more photo(s) has been virtually staged. Welcome to 6257 Cape Hatteras Way NE #5-an extraordinarily rare offering in the coveted Mariners Pass community, where luxury, lifestyle, and direct water access converge. One of only a select few residences in the entire community to feature a DEEDED BOAT SLIP just steps from your back door, this is a true boater's dream and an opportunity that seldom comes to market. From the moment you enter, the home exudes refined coastal sophistication. Thoughtfully upgraded with brand new luxury vinyl plank flooring, the interiors feel both elevated and effortless, perfectly complementing the waterfront setting. The chef-inspired kitchen is designed to impress, featuring shaker-style cabinetry, a sleek stainless steel appliance suite, and a tray ceiling detail that adds a subtle yet unmistakable touch of architectural elegance. The open-concept living spaces flow seamlessly to a screened-in waterfront lanai, creating the ideal setting for morning coffee, sunset cocktails, or simply enjoying the tranquil water views. Just beyond, your private boat slip awaits-offering unparalleled convenience for spontaneous days on the water. Upstairs, three generously sized bedrooms provide a private retreat, including a serene primary suite designed for relaxation. Outdoor living is equally compelling, with a front patio and private courtyard complete with a jacuzzi, offering a secluded oasis to unwind under the Florida sky. A one-car garage adds convenience, while impact-rated windows and doors provide both peace of mind and energy efficiency. Located in Mariners Pass, a waterfront community known for its exceptional value and comprehensive HOA amenities-including water, sewer, trash, exterior maintenance, grounds care, community pools, fishing docks, and more-this residence offers a truly effortless ownership experience. This is more than a home-it's a lifestyle defined by water, privacy, and rarity. Opportunities like this don't come often. Private showings available by appointment.
View MoreCourtesy of
Agency Name: COMPASS FLORIDA LLC
Agency Contact: 727-380-2067
Agent Name: Zach Steinberger
Presented by
Agency Title: The Keyes Company
Agency Phone:
Request Info
Send an email with a link to
6257 Cape Hatteras Way Ne, Unit 5, Saint Petersburg, FL 33702.
Email 6257 Cape Hatteras Way Ne, Unit 5, Saint Petersburg, FL 33702
Thank you for your inquiry! As a thank you, we have a Special Mortgage Offer for You.
We would like to provide you a free, no-obligation, home loan pre-approval review.