
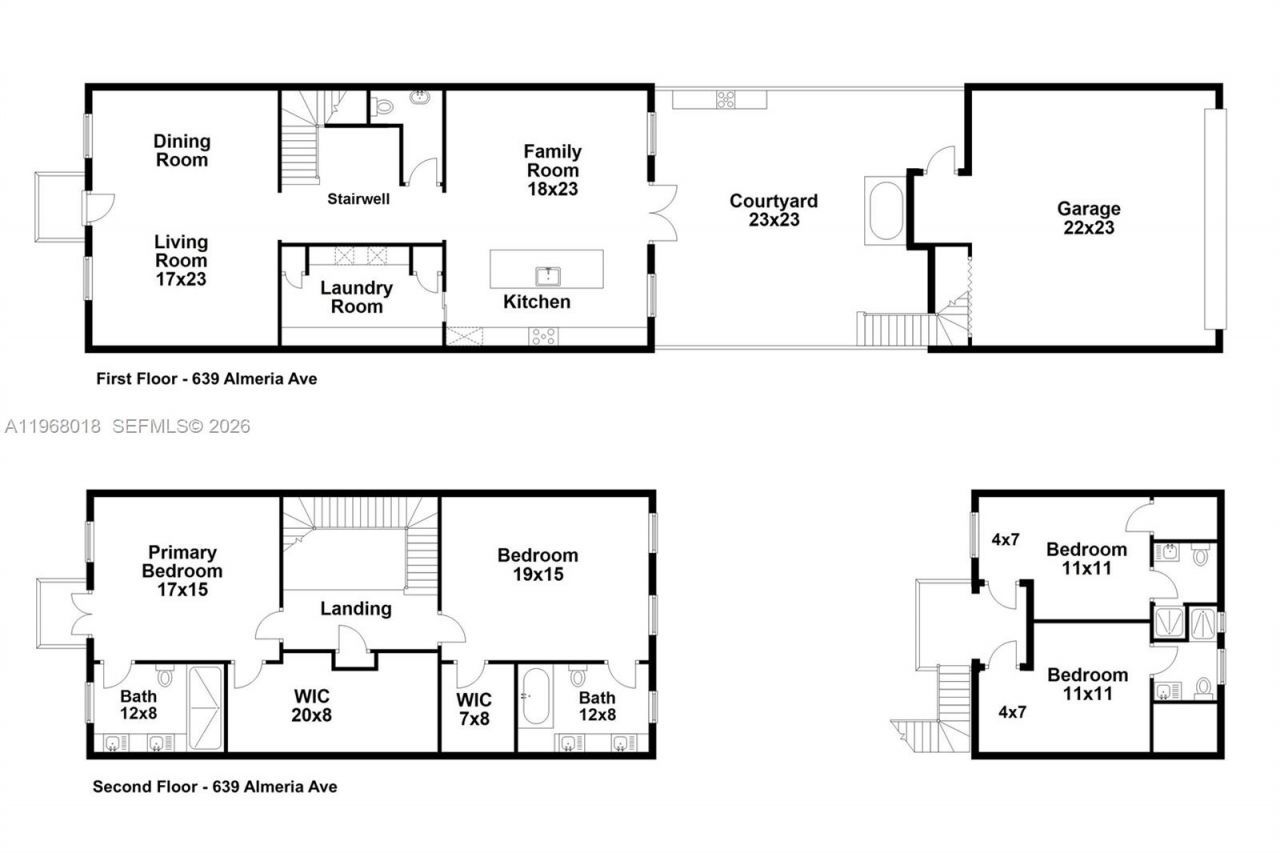
Almeria Row, a collection of luxury townhomes, has garnered architectural awards, and accolades and has been featured in magazines and commercials. The floor plan consists of 2/2.5 main house plus a 2/2 beyond the courtyard and above the garage. Its a wonderful location with close distance to restaurants, shops, parks and the golf course. The unit features 11 and 17 foot ceilings, wood floors, impact windows/doors and a rear access 2 car garage. Garden courtyard includes built in barbeque which ...Almeria Row, a collection of luxury townhomes, has garnered architectural awards, and accolades and has been featured in magazines and commercials. The floor plan consists of 2/2.5 main house plus a 2/2 beyond the courtyard and above the garage. Its a wonderful location with close distance to restaurants, shops, parks and the golf course. The unit features 11 and 17 foot ceilings, wood floors, impact windows/doors and a rear access 2 car garage. Garden courtyard includes built in barbeque which is perfect for dining al fresco. Unit includes furniture from Artefacto and patio furniture from Brown Jordan.
View MoreCourtesy of
Agency Name: BHHS EWM Realty
Agency Phone: 305-960-2400
Agent Name: Ashley Cusack
Presented by
Agency Title: The Keyes Company
Agency Phone:
Request Info
Send an email with a link to
639 Almeria Ave , Coral Gables, FL 33134.
Email 639 Almeria Ave , Coral Gables, FL 33134
Thank you for your inquiry! As a thank you, we have a Special Mortgage Offer for You.
We would like to provide you a free, no-obligation, home loan pre-approval review.