
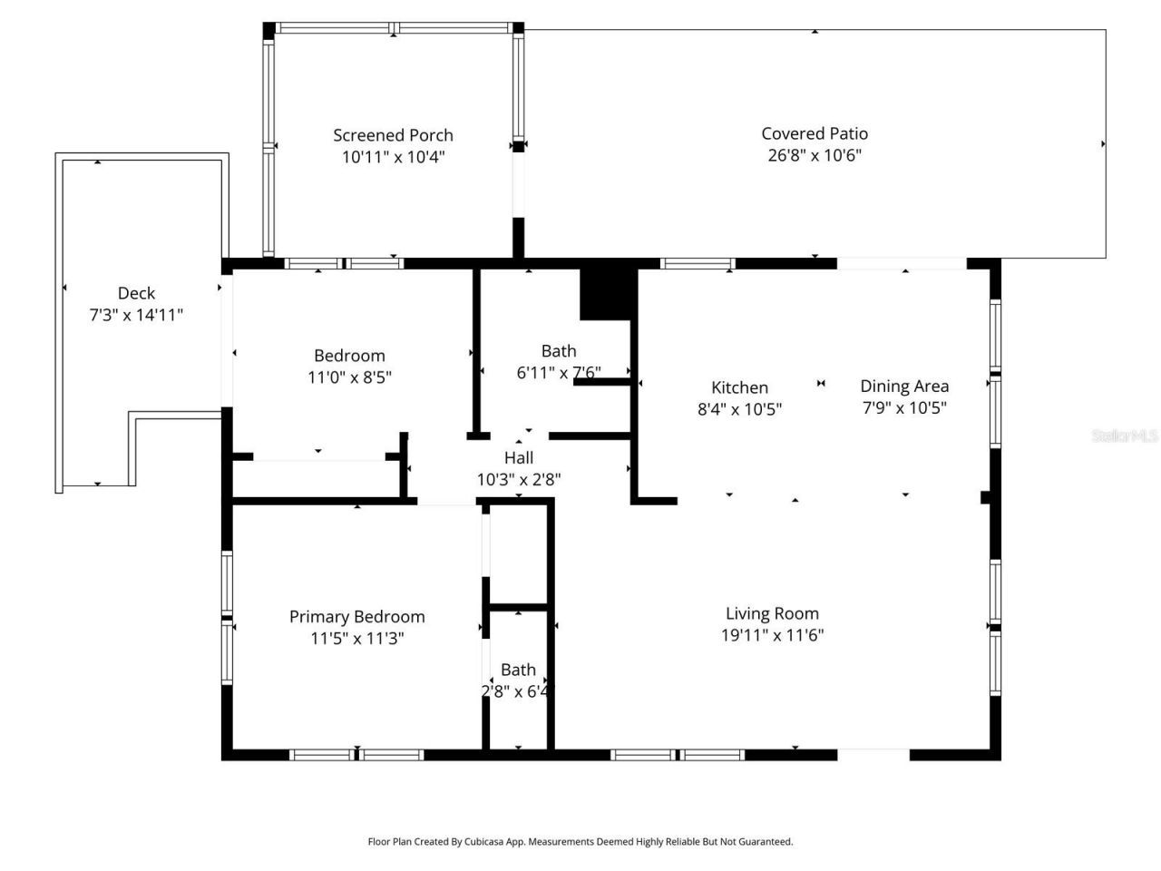
Under contract-accepting backup offers. One or more photo(s) has been virtually staged. Priced to move! Your retirement dream home awaits! This 2 bed/1.5 bath waterfront home was recently remodeled down to the studs resulting in a beautiful waterfront retreat complete with 2025 composite dock and 13,000 pound lift. The features are many: 2025 luxury vinyl waterproof flooring with all new subflooring and vapor barrier to protect the floor; new 2025 kitchen with quartz countertops, wood cabinets, ...Under contract-accepting backup offers. One or more photo(s) has been virtually staged. Priced to move! Your retirement dream home awaits! This 2 bed/1.5 bath waterfront home was recently remodeled down to the studs resulting in a beautiful waterfront retreat complete with 2025 composite dock and 13,000 pound lift. The features are many: 2025 luxury vinyl waterproof flooring with all new subflooring and vapor barrier to protect the floor; new 2025 kitchen with quartz countertops, wood cabinets, stainless appliances and large island making entertaining a breeze; large full bath with marble countertop, step-in shower and comfort height toilet and washer and dryer in utility closet. Primary bedroom has water views and 2025 half bath; guest bedroom can be office/den and has sliding doors to composite deck and water views. Off the kitchen is a 144 sq. ft screened lanai to enjoy the outdoors. All new designer light fixtures, fans and interior paint. The home also boasts drywalled ceilings and walls throughout with R-13 insulation; new HVAC system with ductwork in the ceiling--no vents in floor; new vinyl siding outside; new double paned low E windows throughout; new electrical panel and new wiring throughout; and new energy efficient on demand tankless water heater and new plumbing throughout. This home is like-new without the new home price! Roof has been inspected and is in good condition. Beautifully landscaped. Just move in and enjoy! Price includes share for the lot and ownership in the co-op. Two pets (dogs or cats) up to 35 pounds are welcomed. Home would make a great full-time home, vacation home or investment property as renting is allowed with 2-month minimum. Home is located in popular Americana Cove, a 55+ waterfront community only minutes to downtown St. Petersburg, two airports and 4th Street shopping and restaurants. Low monthly maintenance fee of $380 includes water/sewer, trash pick up, lawn mowing, 24 hr manned gate, heated pool, fitness center, billiards and so much more! Schedule an appointment today to see this affordable waterfront home in a beautiful 55+ community!
View MoreCourtesy of
Agency Name: BAREFOOT REALTY GROUP
Agency Contact: 877-360-7577
Agent Name: Charity Cicardo
Presented by
Agency Title: The Keyes Company
Agency Phone:
Request Info
Send an email with a link to
6823 Mount Pleasant Road Ne, Unit 37, Saint Petersburg, FL 33702.
Email 6823 Mount Pleasant Road Ne, Unit 37, Saint Petersburg, FL 33702
Thank you for your inquiry! As a thank you, we have a Special Mortgage Offer for You.
We would like to provide you a free, no-obligation, home loan pre-approval review.