
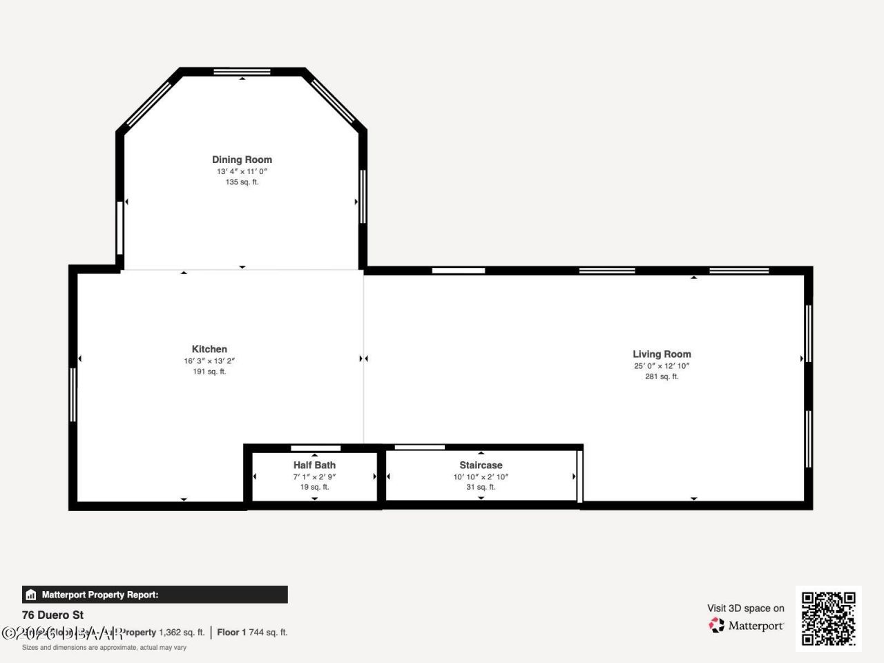
One or more photo(s) has been virtually staged. Saint Augustine beauty located in historic Lincolnville. Built in 2014, this home captures both the historic charm of St. Augustine and the modern conveniences of today. The elevated main house has two bedrooms upstairs. The primary bedroom has its own private access to the large upstairs balcony providing the perfect place to enjoy your morning coffee. Adjacent to each bedroom is a private half bath and shared shower area. The open concept downsta...One or more photo(s) has been virtually staged. Saint Augustine beauty located in historic Lincolnville. Built in 2014, this home captures both the historic charm of St. Augustine and the modern conveniences of today. The elevated main house has two bedrooms upstairs. The primary bedroom has its own private access to the large upstairs balcony providing the perfect place to enjoy your morning coffee. Adjacent to each bedroom is a private half bath and shared shower area. The open concept downstairs is the perfect place for entertaining. The living room has plenty of natural light with several large windows. The living area flows directly into the dining and kitchen area. Quartz counter tops, stainless steel appliances and large kitchen island makes the kitchen both functional and beautiful. This property comes with a detached garage. Above the garage is a spacious studio apartment with a full bathroom and kitchenette. Perfect for visiting guests, a home office or potential rental income. There is plenty of off street parking which will accommodate multiple vehicles. Enjoying the outdoors is easy to do from either of the two inviting and spacious porches. This property has been beautifully landscaped with maintenance free faux grass and beautiful slate pavered walkways. Conveniently located near downtown, it is an easy stroll or bike ride to experience local restaurants, art galleries, quaint shops and historic landmarks. Less than 3 miles to Anastasia State Park and the beach. This home offers the best of Florida living in the Ancient City of beautiful Saint Augustine!
View MoreCourtesy of
Agency Name: The Keyes Company
Agency Phone: 904.891.8725
Agent Name: Debra K Head
Request Info
Send an email with a link to
76 Duero Street, Saint Augustine, FL 32084.
Email 76 Duero Street, Saint Augustine, FL 32084
Thank you for your inquiry! As a thank you, we have a Special Mortgage Offer for You.
We would like to provide you a free, no-obligation, home loan pre-approval review.