
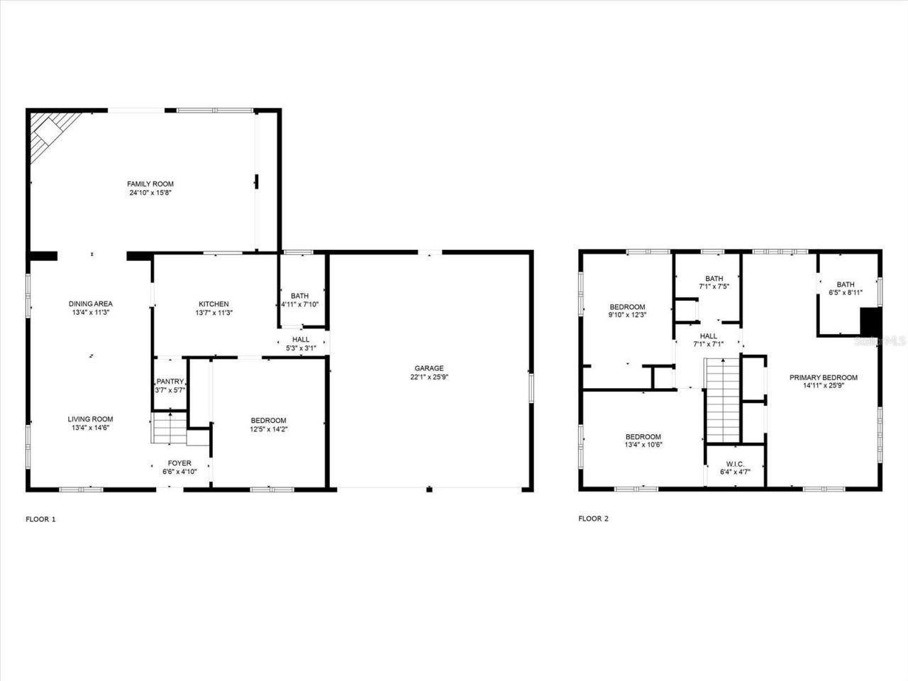
Some photos are Virtually Staged. REMODELED AND READY TO MOVE IN! ABSOLUTELY GORGEOUS! ALL NEW FLOORING DOWNSTAIRS, UPDATED KITCHEN WITH NEW APPLIANCES, DOWNSTAIRS BATHROOM REMODELED, ALL WINDOWS AND SLIDERS ARE HURRICANE IMPACT, NEW INTERIOR DOORS ON LOWER LEVEL. NEW HVAC SYSTEM - AIR HANDLER AND COMPRESSOR, NEW SEWALL, THE PIPES FROM THE HOUSE TO THE STREET WERE REPLACED WITH SOLID PVC AND 2 CLEAN OUTS. PIPES UNDER SLAB WERE HYDRO-SCRUBBED, SCOPED AND CLEANED OUT. Experience the perfect blend ...Some photos are Virtually Staged. REMODELED AND READY TO MOVE IN! ABSOLUTELY GORGEOUS! ALL NEW FLOORING DOWNSTAIRS, UPDATED KITCHEN WITH NEW APPLIANCES, DOWNSTAIRS BATHROOM REMODELED, ALL WINDOWS AND SLIDERS ARE HURRICANE IMPACT, NEW INTERIOR DOORS ON LOWER LEVEL. NEW HVAC SYSTEM - AIR HANDLER AND COMPRESSOR, NEW SEWALL, THE PIPES FROM THE HOUSE TO THE STREET WERE REPLACED WITH SOLID PVC AND 2 CLEAN OUTS. PIPES UNDER SLAB WERE HYDRO-SCRUBBED, SCOPED AND CLEANED OUT. Experience the perfect blend of luxury and waterfront living in this lovely two-story colonial-style, pool home. Walk in to an oversized living room along side the office/4th bedroom, the kitchen and a spacious family room with a wood burning fireplace overlooking the beautiful water view. The fourth bedroom on the ground level can serve as a formal dining room, bedroom or office. There is a full bath with tub on the first floor. Boasting four spacious bedrooms and three bathrooms, this property features an oversized primary suite on the second floor with hard wood floors throughout, offering breathtaking views of both the canal and the beautiful neighborhood, an en-suite bathroom with a walk in shower and plenty of closet space. There are 2 other nice sized bedrooms on the 2nd level, also with hard wood floors and a hall bath with tub. This is the perfect family home! Waterfront Access: A boaters' dream with deep water, no fixed bridges, and easy access to the Gulf of Mexico. Large 13x20 boat dock with underwater dock lights, 2 dedicated boats lifts, 10,000 lbs and 4,000 lbs. New boat cradle, bunk and I beams. Deep water perfect for accommodating your sailboat. Enjoy the large 18x32 pool with spa, surrounded by an expansive patio adorned with pavers and landscaping. A new pool pump was installed post Hurricane Milton. Relax in the serene ambiance on the 11x35 covered patio with your morning coffee or your glass of wine in the evenings. The expansive yard boasts plenty of room for the family and pups to run around and play, splash in the pool, or fish off the dock. The Oversized 2 car garage has extra space for the tinkering type with a built in workshop. Need to store your boat trailer or RV? No problem you can store both here! Fenced yard with double gates large enough to park a RV or boat/trailer on both sides of house, with camper and generator outlets on both sides. There is a pool storage room for the equipment and extra storage. The property has a reclaimed water sprinkler system. The tankless on demand gas hot water heater ensures efficiency and comfort. New siding installed on entire house prior to storms still in perfect condition! This in a Prime Location! Nestled in the sought-after Yacht Club Estates, just minutes from the stunning Treasure Island beaches, vibrant downtown St. Petersburg, and all the local conveniences. Don't miss out on this rare opportunity to own a piece of paradise! Contact us today to schedule a viewing.
View MoreCourtesy of
Agency Name: KELLER WILLIAMS ST PETE REALTY
Agency Contact: murraycoleman@kw.com
Agent Name: Chris Price
Presented by
Agency Title: The Keyes Company
Agency Phone:
Request Info
Send an email with a link to
7886 9th Avenue S, Saint Petersburg, FL 33707.
Email 7886 9th Avenue S, Saint Petersburg, FL 33707
Thank you for your inquiry! As a thank you, we have a Special Mortgage Offer for You.
We would like to provide you a free, no-obligation, home loan pre-approval review.