
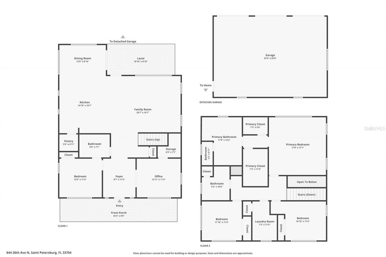
Completed new construction in the heart of Crescent Heights, offering thoughtful design, durable concrete construction, and exceptional livability.Located in a low-risk X flood zone, this move-in-ready residence features 4 bedrooms, 3 bathrooms, plus a dedicated office, with 2,872 square feet of heated and conditioned living space and over 4,302 square feet of total building area.Both the first and second floors feature 10-foot ceilings, creating a bright, open feel throughout. The layout includ...Completed new construction in the heart of Crescent Heights, offering thoughtful design, durable concrete construction, and exceptional livability.Located in a low-risk X flood zone, this move-in-ready residence features 4 bedrooms, 3 bathrooms, plus a dedicated office, with 2,872 square feet of heated and conditioned living space and over 4,302 square feet of total building area.Both the first and second floors feature 10-foot ceilings, creating a bright, open feel throughout. The layout includes a first-floor ensuite bedroom, ideal for guests or multi-generational living, along with a separate office or den on the main level.Upstairs, the primary suite serves as a private retreat, offering generous proportions, a spa-inspired bath, and ample closet space. Additional bedrooms are well sized and thoughtfully arranged to provide flexibility for family, guests, or work-from-home needs.The home is constructed with concrete block on the first floor, second floor, and detached garage, providing superior strength, durability, and quiet interior living. The exterior is finished with a refined siding fa?ade with brick columns that complements the architectural character of the Crescent Heights neighborhood.The open main living area is designed for everyday comfort and entertaining, with generous natural light and seamless flow between the kitchen, dining, and living spaces. Finishes are cohesive and timeless, selected to balance style with long-term livability.Outdoor living is a standout feature, highlighted by a private in-ground pool with a PebbleSheen finish, natural stone pool decking, and a sun shelf, creating a relaxed, resort-style backyard setting. Covered front and rear porches further extend the living space for year-round enjoyment.Detached garages are common in Crescent Heights, but this home distinguishes itself with a true three-car detached garage offering exceptional flexibility and additional attic storage above the garage.Ideally located just minutes from downtown St. Petersburg, waterfront parks, dining, and shopping, this home combines modern new-construction quality with the charm, walkability, and appeal Crescent Heights is known for.
View MoreCourtesy of
Agency Name: REALNET FLORIDA REAL ESTATE
Agency Contact: greg.vanderwel@realnettampabay.com
Agent Name: Jonathan Meyer, PA
Presented by
Agency Title: The Keyes Company
Agency Phone:
Request Info
Send an email with a link to
844 26th Avenue N, Saint Petersburg, FL 33704.
Email 844 26th Avenue N, Saint Petersburg, FL 33704
Thank you for your inquiry! As a thank you, we have a Special Mortgage Offer for You.
We would like to provide you a free, no-obligation, home loan pre-approval review.